Toggle navigation
(+356) 2164 9500
(+356) 9998 6779
info@sensaramalta.com
Head Office - Sensara Malta
Triq Santa Marija, Safi
09.00 to 19.00 hrs
Monday to Saturday
Home
Properties
Sales
Rentals
Foreign
About us
Services
Contacts
Send your request
Previous
Next
260,000 €
CLICK HERE for DETAILED PHOTOS
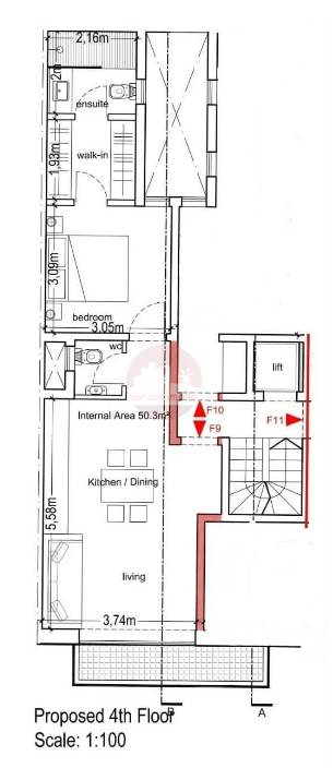
San Gwann - 1 Bedroom 3rd Floor Finished Apartment On Plan
1 bedroom apartment for sale • San Gwann
Located on the third floor in San Gwann, one-bedroom finished apartment, currently available on plan.
The layout comprises of an open plan kitchen/dining/living with a front balcony, main bathroom and a double bedroom which is complimented by an ensuite bathroom, a walk-in-wardrobe and a balcony.
This property is served with a lift and Freehold.
It is being offered finished (excluding bathrooms and internal doors) and is estimate to be completed by the end of 2027.
Rooms and Features
Code
V024164
Locality
San Gwann
Property type
1 bedroom apartment
Price
260,000 €
Locals
1
Bedrooms
1
Bathrooms
2
Sqm
50
Balconies
1
Terraces
1
Floor
3
Energetic class
Nondescript
Photos • Floorplans • Video
Photos
Options
Print Property sheet
Send property sheet by mail
Schedule a visit
RealEstate Brokers
Zahra Jason
+356 7748 1209
+356 9998 6779
+356 2164 9500
jason@sensaramalta.com
Information request
Name *
Phone *
E-mail *
Request Details *
I authorize the processing of my personal data according Regolamento UE n. 679/2016 -
Privacy Policy
I authorize the processing of data for marketing purposes, promotional activities, commercial offers and market surveys.
Send
Share on
We also recommend
for Sale
Marsa - 1 Bedroom 3rd Floor Apartment On Plan
209,000 €
for Sale
Nadur Gozo - 1 Bedroom + Study Ground Floor Maisonette
180,000 €
for Sale
Paola- 1 Bedroom 1st Floor Apartment in Shell form On Plan
200,000 €
Keep default settings X
Use of cookies
This site uses cookies. Our (own) cookies and those of our Partners (third party cookies) are used to offer you a unique experience with us. For this reason, together with our partners, we collect and process non-sensitive information (such as the identifier of your device or the pages you visit).
At any time you can delete, modify or verify the information you share in
Cookie preference
or in our
Cookie Policy
and
Privacy Policy
.
Necessary
Functional
Profiling
Analytics
Accept all
Decline all
Accept selected
Cookie preference