Toggle navigation
(+356) 2164 9500
(+356) 9998 6779
info@sensaramalta.com
Head Office - Sensara Malta
Triq Santa Marija, Safi
09.00 to 19.00 hrs
Monday to Saturday
Home
Properties
Sales
Rentals
Foreign
About us
Services
Contacts
Send your request
Previous
Next
180,000 €
CLICK HERE for DETAILED PHOTOS
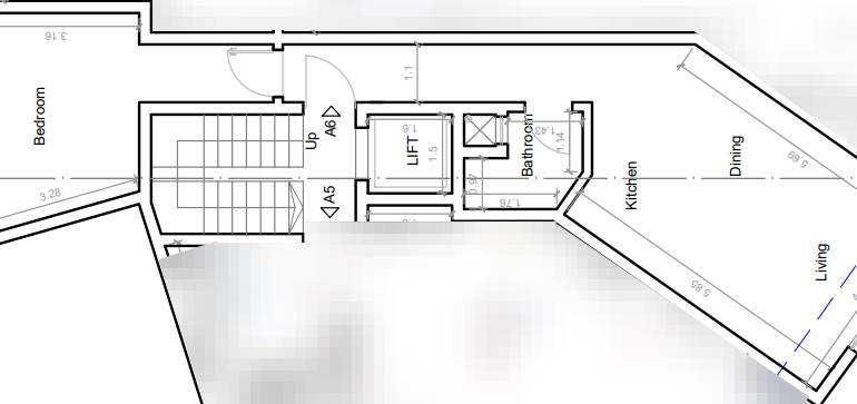
Nadur Gozo - 1 Bedroom + Study Ground Floor Maisonette
1 bedroom apartment for sale • Nadur Gozo
Nadur – One Bedroom + Study Ground Floor MAISONETTE
Situated on the outskirts of Nadur, this ground floor MAISONETTE offers a practical layout with one bedroom and a study. It is being sold in shell form, making it ideal for personal finishing touches.
Shell form completion: mid-2027
Completion of common parts: end of 2027
A great opportunity to secure a home or rental investment in a tranquil area
Rooms and Features
Code
V022945
Locality
Nadur Gozo
Property type
1 bedroom apartment
Price
180,000 €
Locals
1
Sqm
70.6
Energetic class
Not applicable
Photos • Floorplans • Video
Photos
Options
Print Property sheet
Send property sheet by mail
Schedule a visit
RealEstate Brokers
Xiberras Joanie
+356 9985 2678
+356 9998 6779
+356 9998 6775
joanie.gozo@sensaramalta.com
Information request
Name *
Phone *
E-mail *
Request Details *
I authorize the processing of my personal data according Regolamento UE n. 679/2016 -
Privacy Policy
I authorize the processing of data for marketing purposes, promotional activities, commercial offers and market surveys.
Send
Share on
We also recommend
for Sale
Birkirkara - 2nd Floor 1 Bedroom Apartment
220,000 €
for Sale
Swieqi- 2nd floor , 1 bedroom + Back Balcony + Fully Finished + Opt Garage
410,000 €
for Sale
Marsa - 1 Bedroom 3rd Floor Apartment On Plan
213,000 €
Keep default settings X
Use of cookies
This site uses cookies. Our (own) cookies and those of our Partners (third party cookies) are used to offer you a unique experience with us. For this reason, together with our partners, we collect and process non-sensitive information (such as the identifier of your device or the pages you visit).
At any time you can delete, modify or verify the information you share in
Cookie preference
or in our
Cookie Policy
and
Privacy Policy
.
Necessary
Functional
Profiling
Analytics
Accept all
Decline all
Accept selected
Cookie preference