Toggle navigation
(+356) 2164 9500
(+356) 9998 6779
info@sensaramalta.com
Head Office - Sensara Malta
Triq Santa Marija, Safi
09.00 to 19.00 hrs
Monday to Saturday
Home
Properties
Sales
Rentals
Foreign
About us
Services
Contacts
Send your request
Previous
Next
200,000 €
CLICK HERE for DETAILED PHOTOS
Paola- 1 Bedroom 1st Floor Apartment in Shell form On Plan
1 bedroom apartment for sale • Paola
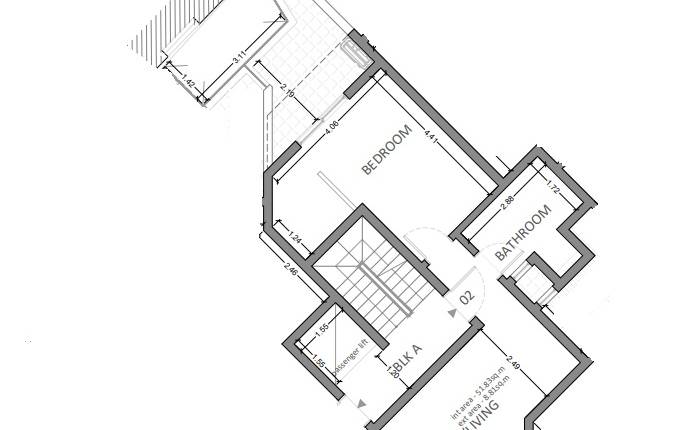
Located in Paola, one-bedroom first floor apartment is currently available on plan, set to be completed by end of 2026.
The layout consists of an open plan kitchen/dining/living with a front balcony, main bathroom and a double bedroom with ensuite and walk-in wardrobe.
Freehold
Rooms and Features
Code
V023846
Locality
Paola
Property type
1 bedroom apartment
Price
200,000 €
Locals
1
Bedrooms
1
Bathrooms
1
Sqm
57
Balconies
1
Floor
1
Energetic class
Not applicable
Photos • Floorplans • Video
Photos
Options
Print Property sheet
Send property sheet by mail
Schedule a visit
RealEstate Brokers
Aguis Lorna
+356 9961 6121
+356 9998 6779
+356 2164 9500
lorna@sensaramalta.com
Information request
Name *
Phone *
E-mail *
Request Details *
I authorize the processing of my personal data according Regolamento UE n. 679/2016 -
Privacy Policy
I authorize the processing of data for marketing purposes, promotional activities, commercial offers and market surveys.
Send
Share on
We also recommend
for Sale
Birkirkara - 3rd Floor 1 Double Bedroom Finished Apartment
241,000 €
for Sale
Marsa - One Bedroom 1st floor Shell Form Apartment On Plan
185,000 €
for Sale
Zabbar - 1 Bedroom Finished 1st Floor Apartment On Plan
251,000 €
Keep default settings X
Use of cookies
This site uses cookies. Our (own) cookies and those of our Partners (third party cookies) are used to offer you a unique experience with us. For this reason, together with our partners, we collect and process non-sensitive information (such as the identifier of your device or the pages you visit).
At any time you can delete, modify or verify the information you share in
Cookie preference
or in our
Cookie Policy
and
Privacy Policy
.
Necessary
Functional
Profiling
Analytics
Accept all
Decline all
Accept selected
Cookie preference