Toggle navigation
(+356) 2164 9500
(+356) 9998 6779
info@sensaramalta.com
Head Office - Sensara Malta
Triq Santa Marija, Safi
09.00 to 19.00 hrs
Monday to Saturday
Home
Properties
Sales
Rentals
Foreign
About us
Services
Contacts
Send your request
Previous
Next
461,000 €
CLICK HERE for DETAILED PHOTOS
Zebbiegh-2 bedroom Fully Finished Apartment + Country Views
2 bedroom apartment for sale • Zebbiegh
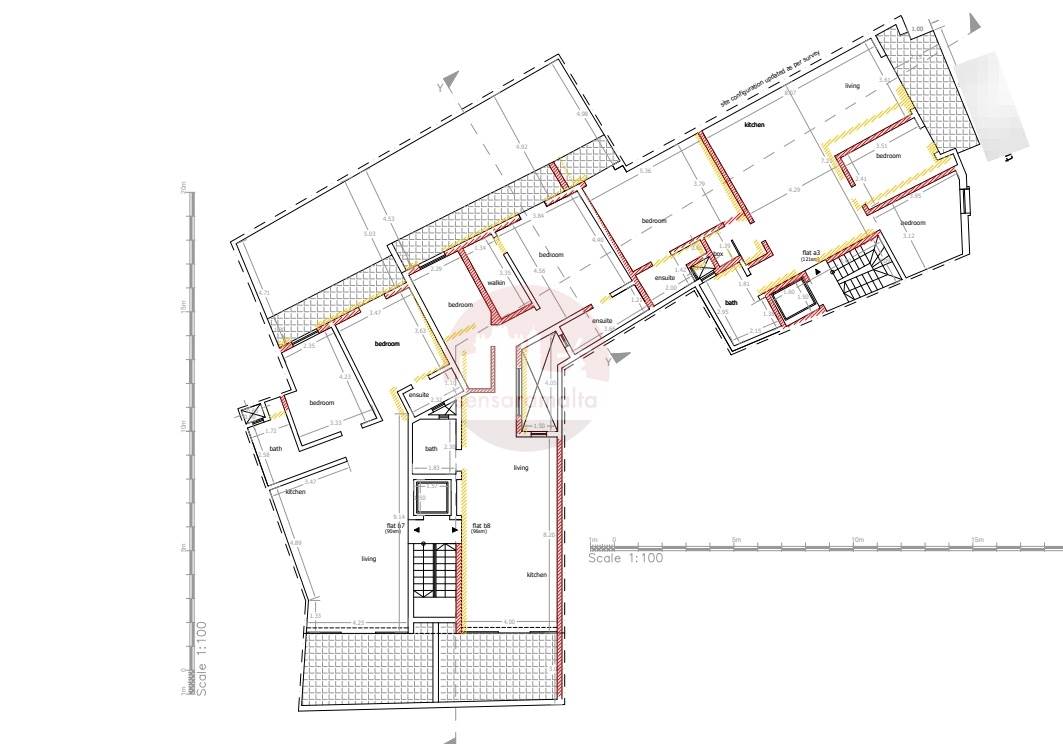
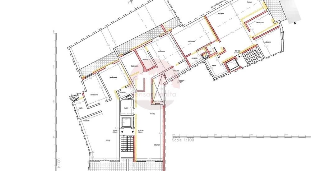
Situated in a sought-after area of Zebbiegh, this ready-to-move-into top-floor apartment presents an excellent opportunity for those seeking comfort, space, and a well-designed layout.
The property features a welcoming kitchen, living, and dining area leading onto a generously sized terrace, ideal for outdoor enjoyment and entertaining. It includes a main bathroom, a guest bedroom, and a master bedroom complete with a walk-in wardrobe, a private en suite, and access to a back balcony.
Fully air-conditioned throughout, this bright and airy home offers a practical yet stylish living environment, making it an ideal residence or investment.
An optional interconnected garage is also available
Rooms and Features
Code
V024525
Locality
Zebbiegh
Property type
2 bedroom apartment
Price
461,000 €
Locals
1
Bedrooms
2
Bathrooms
2
Sqm
110
Balconies
1
Terraces
1
Floor
4
Energetic class
Nondescript
Property Conditions
Perfect Conditions
Furniture
Furnished
Accessories:
Air Conditioning, Elevator, Video Intercom
Photos • Floorplans • Video
Photos
Options
Print Property sheet
Send property sheet by mail
Schedule a visit
RealEstate Brokers
Hughes Jeffrey
+356 9980 0004
+356 9998 6779
+356 9998 6775
hughes@sensaramalta.com
Information request
Name *
Phone *
E-mail *
Request Details *
I authorize the processing of my personal data according Regolamento UE n. 679/2016 -
Privacy Policy
I authorize the processing of data for marketing purposes, promotional activities, commercial offers and market surveys.
Send
Share on
We also recommend
for Sale
Naxxar - 2 Bedroom 2nd Floor Fully Finished Apartment On Plan
335,000 €
for Sale
Qormi - 4th floor 2 Bedroom Apartment On Plan + terrace
230,000 €
for Sale
Msida - 2 Bedroom Second Floor Finished Apartment On Plan
302,000 €
Keep default settings X
Use of cookies
This site uses cookies. Our (own) cookies and those of our Partners (third party cookies) are used to offer you a unique experience with us. For this reason, together with our partners, we collect and process non-sensitive information (such as the identifier of your device or the pages you visit).
At any time you can delete, modify or verify the information you share in
Cookie preference
or in our
Cookie Policy
and
Privacy Policy
.
Necessary
Functional
Profiling
Analytics
Accept all
Decline all
Accept selected
Cookie preference