Toggle navigation
(+356) 2164 9500
(+356) 9998 6779
info@sensaramalta.com
Head Office - Sensara Malta
Triq Santa Marija, Safi
09.00 to 19.00 hrs
Monday to Saturday
Home
Properties
Sales
Rentals
Foreign
About us
Services
Contacts
Send your request
Previous
Next
335,000 €
CLICK HERE for DETAILED PHOTOS
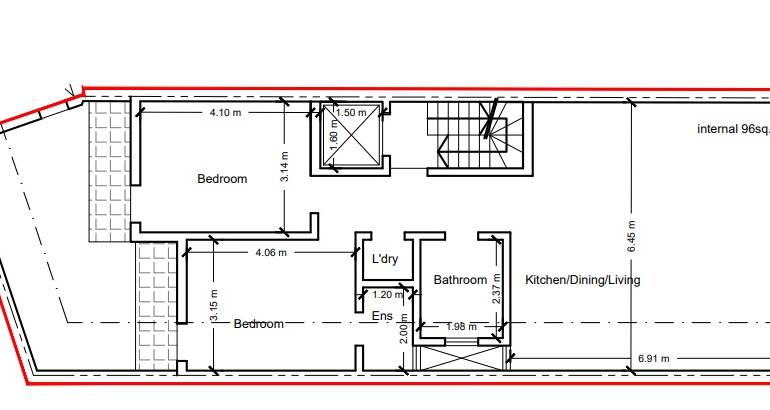
Naxxar - 2 Bedroom 2nd Floor Fully Finished Apartment On Plan
2 bedroom apartment for sale • Naxxar
Located in the heart of Naxxar close to all amenities, two-bedroom second floor apartment currently on plan.
Consists of an open-plan kitchen/dining/living area with a front balcony, a main bathroom, and two bedrooms — the master with an ensuite bathroom and the second bedroom featuring a private balcony.
This property is being offered fully finished including bathrooms and internal doors. Estimated to be ready shell form by end of 2027.
Rooms and Features
Code
V023375
Locality
Naxxar
Property type
2 bedroom apartment
Price
335,000 €
Locals
1
Bedrooms
2
Bathrooms
2
Sqm
92
Floor
2
Energetic class
Nondescript
Photos • Floorplans • Video
Photos
Options
Print Property sheet
Send property sheet by mail
Schedule a visit
RealEstate Brokers
Jenkins Rita
+356 7712 7772
+356 9998 6779
+356 9998 6775
rita@sensaramalta.com
Information request
Name *
Phone *
E-mail *
Request Details *
I authorize the processing of my personal data according Regolamento UE n. 679/2016 -
Privacy Policy
I authorize the processing of data for marketing purposes, promotional activities, commercial offers and market surveys.
Send
Share on
We also recommend
for Sale
Zabbar - 2 Bedroom Elevated Ground Floor Fully Finished Apartment
300,000 €
for Sale
Fgura - 2 Bedroom Apartment On Plan
267,000 €
for Sale
Mosta - Already Built 2 Bedroom Finished Apartment + Terrace + Balcony
389,500 €
Keep default settings X
Use of cookies
This site uses cookies. Our (own) cookies and those of our Partners (third party cookies) are used to offer you a unique experience with us. For this reason, together with our partners, we collect and process non-sensitive information (such as the identifier of your device or the pages you visit).
At any time you can delete, modify or verify the information you share in
Cookie preference
or in our
Cookie Policy
and
Privacy Policy
.
Necessary
Functional
Profiling
Analytics
Accept all
Decline all
Accept selected
Cookie preference