Toggle navigation
(+356) 2164 9500
(+356) 9998 6779
info@sensaramalta.com
Head Office - Sensara Malta
Triq Santa Marija, Safi
09.00 to 19.00 hrs
Monday to Saturday
Home
Properties
Sales
Rentals
Foreign
About us
Services
Contacts
Send your request
Previous
Next
440,000 €
CLICK HERE for DETAILED PHOTOS
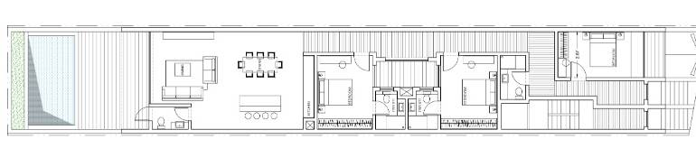
Fgura - Ground Floor Furnished 3 Bedroom Maisonette + Backyard
Maisonette for sale • Fgura
A well-kept ground floor maisonette located in one of the most beautiful and sought-after areas with a total plot area of approx 175 sqm.
This charming property offers a comfortable and practical layout, featuring three spacious double bedrooms and a main bathroom.
The home includes a separate kitchen and dining area, along with a separate living room that provides a cozy space for relaxation.
The front living room also offers excellent potential to be converted into a street-level garage, adding valuable flexibility to the property.
At the rear, one finds a generous 37 sqm backyard, perfect for outdoor entertaining , complemented by a 12 sqm washroom for added convenience.
Rooms and Features
Code
V024421
Locality
Fgura
Property type
Maisonette
Price
440,000 €
Locals
1
Bathrooms
1
Sqm
175
Energetic class
Nondescript
Photos • Floorplans • Video
Photos
Options
Print Property sheet
Send property sheet by mail
Schedule a visit
RealEstate Brokers
Schembri Josianne
+356 7782 4222
+356 9998 6779
+356 9998 6775
josianne@sensaramalta.com
Briffa Stephania
+356 7747 9456
+356 9998 6779
+356 9998 6775
stephania@sensaramalta.com
Information request
Name *
Phone *
E-mail *
Request Details *
I authorize the processing of my personal data according Regolamento UE n. 679/2016 -
Privacy Policy
I authorize the processing of data for marketing purposes, promotional activities, commercial offers and market surveys.
Send
Share on
We also recommend
for Sale
Zurrieq - 2 Bedroom Finished Maisonette On Plan
399,500 €
for Sale
Sannat - Fully Furnished Corner Maisonette
450,000 €
for Sale
Rabat - 3 Bedroom Finished Larger Than Usual Elevated Maisonette On Plan
635,000 €
Keep default settings X
Use of cookies
This site uses cookies. Our (own) cookies and those of our Partners (third party cookies) are used to offer you a unique experience with us. For this reason, together with our partners, we collect and process non-sensitive information (such as the identifier of your device or the pages you visit).
At any time you can delete, modify or verify the information you share in
Cookie preference
or in our
Cookie Policy
and
Privacy Policy
.
Necessary
Functional
Profiling
Analytics
Accept all
Decline all
Accept selected
Cookie preference