Toggle navigation
(+356) 2164 9500
(+356) 9998 6779
info@sensaramalta.com
Head Office - Sensara Malta
Triq Santa Marija, Safi
09.00 to 19.00 hrs
Monday to Saturday
Home
Properties
Sales
Rentals
Foreign
About us
Services
Contacts
Send your request
Previous
Next
635,000 €
CLICK HERE for DETAILED PHOTOS
Rabat - 3 Bedroom Finished Larger Than Usual Elevated Maisonette On Plan
Maisonette for sale • Rabat
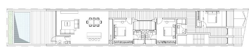
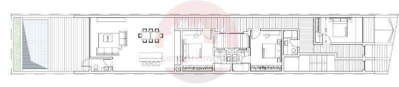
Situated on the ground floor level, three-bedroom elevated maisonette of circa 211sqm, currently available on plan in Rabat.
The layout comprises of a hallway upon entering, a double bedroom on the right hand side, main bathroom and another two double bedrooms (both of them with an ensuite bathroom) on the right hand side and opens to a kitchen/dining/living with a back yard complemented by a pool at the back.
This property is being offered finished excluding bathrooms and internal doors and is estimate to be completed by 2027. Optional garages are available starting from 77k.
Rooms and Features
Code
V024438
Locality
Rabat
Property type
Maisonette
Price
635,000 €
Locals
1
Bedrooms
3
Bathrooms
3
Sqm
211
Terraces
1
Floor
Ground floor
Energetic class
Nondescript
Photos • Floorplans • Video
Photos
Options
Print Property sheet
Send property sheet by mail
Schedule a visit
RealEstate Brokers
Sensara Jessica
+356 7939 4933
jessica@sensaramalta.com
Information request
Name *
Phone *
E-mail *
Request Details *
I authorize the processing of my personal data according Regolamento UE n. 679/2016 -
Privacy Policy
I authorize the processing of data for marketing purposes, promotional activities, commercial offers and market surveys.
Send
Share on
We also recommend
for Sale
Ghaxaq - 2 Bedroom Finished Ground Floor Maisonette On Plan
289,000 €
for Sale
Birzebbugia - 3 Bedroom Finished Elevated Maisonette On Plan
405,000 €
for Sale
Swieqi- Elevated Ground Floor Maisonette , 2 bedroom + Yard + Fully Finished + Opt Garage
410,000 €
Keep default settings X
Use of cookies
This site uses cookies. Our (own) cookies and those of our Partners (third party cookies) are used to offer you a unique experience with us. For this reason, together with our partners, we collect and process non-sensitive information (such as the identifier of your device or the pages you visit).
At any time you can delete, modify or verify the information you share in
Cookie preference
or in our
Cookie Policy
and
Privacy Policy
.
Necessary
Functional
Profiling
Analytics
Accept all
Decline all
Accept selected
Cookie preference