Toggle navigation
(+356) 2164 9500
(+356) 9998 6779
info@sensaramalta.com
Head Office - Sensara Malta
Triq Santa Marija, Safi
09.00 to 19.00 hrs
Monday to Saturday
Home
Properties
Sales
Rentals
Foreign
About us
Services
Contacts
Send your request
Previous
Next
295,000 €
CLICK HERE for DETAILED PHOTOS
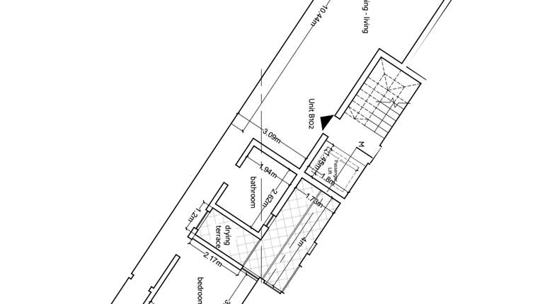
Zabbar - 2 Bedroom Elevated Ground Floor Fully Finished Apartment
2 bedroom apartment for sale • Zabbar
In the heart of Zabbar lies this circa 100 sqm elevated ground floor apartment, currently under construction, which is being offered fully finished, including bathrooms and internal doors. The block consists of a basement and street-level garages, an office, 12 apartments, and 2 penthouses.
The total project is estimated to be fully completed by the end of 2026.
The layout comprises an open plan overlooking a front well size terrace, master bathroom, 2 double bedrooms, of which the main is served with ensuit and a balcony.
Optional Garages are available starting from 60k
Freehold.
Rooms and Features
Code
V023750
Locality
Zabbar
Property type
2 bedroom apartment
Price
295,000 €
Locals
1
Bedrooms
2
Bathrooms
2
Sqm
94
Balconies
1
Terraces
2
Floor
Mezzanine
Energetic class
Not applicable
Property Conditions
Under Construction
Accessories:
Double Glazing
Photos • Floorplans • Video
Photos
Options
Print Property sheet
Send property sheet by mail
Schedule a visit
RealEstate Brokers
Schembri Maria Pawla
+356 7732 8183
+356 9998 6779
+356 9998 6775
pawla@sensaramalta.com
Information request
Name *
Phone *
E-mail *
Request Details *
I authorize the processing of my personal data according Regolamento UE n. 679/2016 -
Privacy Policy
I authorize the processing of data for marketing purposes, promotional activities, commercial offers and market surveys.
Send
Share on
We also recommend
for Sale
Msida - 2 Bedroom Finished Ground Floor Apartment On Plan
302,000 €
for Sale
Rabat - 2 Bedroom Finished Luxurious Apartment + Pool + Terrace + Views
820,000 €
for Sale
Luqa - 2 Bed,2 Bath Finished 2nd Flr Apartment
308,000 €
Keep default settings X
Use of cookies
This site uses cookies. Our (own) cookies and those of our Partners (third party cookies) are used to offer you a unique experience with us. For this reason, together with our partners, we collect and process non-sensitive information (such as the identifier of your device or the pages you visit).
At any time you can delete, modify or verify the information you share in
Cookie preference
or in our
Cookie Policy
and
Privacy Policy
.
Necessary
Functional
Profiling
Analytics
Accept all
Decline all
Accept selected
Cookie preference