Toggle navigation
(+356) 2164 9500
(+356) 9998 6779
info@sensaramalta.com
Head Office - Sensara Malta
Triq Santa Marija, Safi
09.00 to 19.00 hrs
Monday to Saturday
Home
Properties
Sales
Rentals
Foreign
About us
Services
Contacts
Send your request
Previous
Next
308,500 €
CLICK HERE for DETAILED PHOTOS
Zejtun - 3 Bedroom Fully Finished Apartment
3+ bedroom apartment for sale • Zejtun
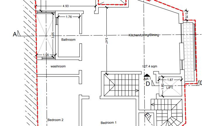
Within Zejtun comes this opportunity to acquire this 3-bedroom apartment currently on plan, which will be offered highly finished, complete with bathrooms and internal doors.
This apartment is situated on the 1st floor in a block of only 4 and comprises a kitchen, living/dining area with a balcony, and a bathroom. There is a master double bedroom with its own balcony and an ensuite and two other bedrooms. Served with Lift and Freehold
Optional street level
Garage: €92,000
Garage: €92000
Rooms and Features
Code
V022592
Locality
Zejtun
Property type
3+ bedroom apartment
Price
308,500 €
Locals
1
Bedrooms
3
Bathrooms
2
Sqm
125
Balconies
2
Floor
1
Energetic class
Nondescript
Property Conditions
Next Realization
Accessories:
Elevator
Photos • Floorplans • Video
Photos
Options
Print Property sheet
Send property sheet by mail
Schedule a visit
RealEstate Brokers
Hughes Jeffrey
+356 9980 0004
+356 9998 6779
+356 9998 6775
hughes@sensaramalta.com
Information request
Name *
Phone *
E-mail *
Request Details *
I authorize the processing of my personal data according Regolamento UE n. 679/2016 -
Privacy Policy
I authorize the processing of data for marketing purposes, promotional activities, commercial offers and market surveys.
Send
Share on
We also recommend
for Sale
Fgura - 3 Bedroom 1st Floor Finished Apartment On Plan
379,000 €
for Sale
Burmarrad - 3 Bedroom Apartment
302,000 €
for Sale
San Giljan - 3 Bedroom Furnished Apartment
625,000 €
Keep default settings X
Use of cookies
This site uses cookies. Our (own) cookies and those of our Partners (third party cookies) are used to offer you a unique experience with us. For this reason, together with our partners, we collect and process non-sensitive information (such as the identifier of your device or the pages you visit).
At any time you can delete, modify or verify the information you share in
Cookie preference
or in our
Cookie Policy
and
Privacy Policy
.
Necessary
Functional
Profiling
Analytics
Accept all
Decline all
Accept selected
Cookie preference