Toggle navigation
(+356) 2164 9500
(+356) 9998 6779
info@sensaramalta.com
Head Office - Sensara Malta
Triq Santa Marija, Safi
09.00 to 19.00 hrs
Monday to Saturday
Home
Properties
Sales
Rentals
Foreign
About us
Services
Contacts
Send your request
Previous
Next
379,000 €
CLICK HERE for DETAILED PHOTOS
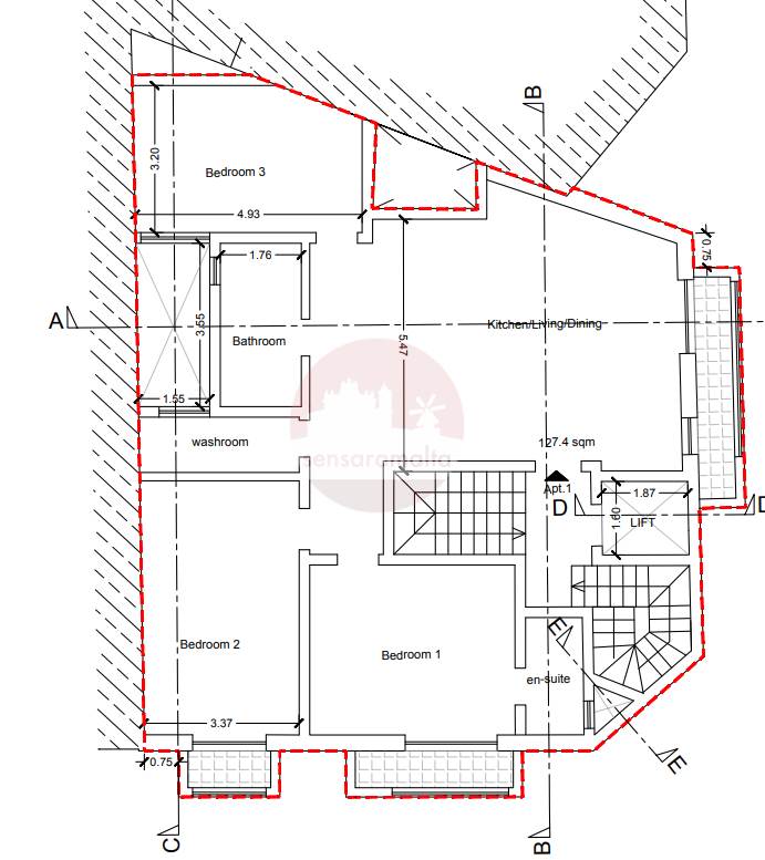
Fgura - 3 Bedroom 1st Floor Finished Apartment On Plan
3+ bedroom apartment for sale • Fgura
Located on the first floor in a new block of only 5 units, three-bedroom apartment located in Fgura, currently available on plan.
The layout comprises of an open plan kitchen/dining/living with a front balcony, main bathroom, a washroom and three double bedrooms. The master bedroom includes an ensuite bathroom and a balcony and the second bedroom also includes a balcony.
This property is being offered fully finished including bathrooms and internal doors and is estimate to be completed by the end of 2026.
Rooms and Features
Code
V024145
Locality
Fgura
Property type
3+ bedroom apartment
Price
379,000 €
Locals
1
Bedrooms
3
Bathrooms
2
Sqm
127
Balconies
3
Floor
1
Energetic class
Nondescript
Photos • Floorplans • Video
Photos
Options
Print Property sheet
Send property sheet by mail
Schedule a visit
RealEstate Brokers
Tanti Charlene
+356 7934 5923
+356 9998 6779
+356 9998 6775
charlene.tanti@sensaramalta.com
Information request
Name *
Phone *
E-mail *
Request Details *
I authorize the processing of my personal data according Regolamento UE n. 679/2016 -
Privacy Policy
I authorize the processing of data for marketing purposes, promotional activities, commercial offers and market surveys.
Send
Share on
We also recommend
for Sale
Rabat - 3 Bed Finished Luxurious Duplex Apartment + Private Pool + Terrace + Views
2,970,000 €
for Sale
Mosta - 210sqm 2nd Floor 3 Double Bedroom Finished Apartment + Terrace
535,000 €
for Sale
Santa Venera - 3 Bedroom 1st Floor Finished Apartment
390 €
Keep default settings X
Use of cookies
This site uses cookies. Our (own) cookies and those of our Partners (third party cookies) are used to offer you a unique experience with us. For this reason, together with our partners, we collect and process non-sensitive information (such as the identifier of your device or the pages you visit).
At any time you can delete, modify or verify the information you share in
Cookie preference
or in our
Cookie Policy
and
Privacy Policy
.
Necessary
Functional
Profiling
Analytics
Accept all
Decline all
Accept selected
Cookie preference