Toggle navigation
(+356) 2164 9500
(+356) 9998 6779
info@sensaramalta.com
Head Office - Sensara Malta
Triq Santa Marija, Safi
09.00 to 19.00 hrs
Monday to Saturday
Home
Properties
Sales
Rentals
Foreign
About us
Services
Contacts
Send your request
Previous
Next
564,000 €
CLICK HERE for DETAILED PHOTOS
Birkirkara - Already Built 3 Bedroom Finished Penthouse With Pool + Airspace + Garage
Penthouse for sale • Birkirkara
Always dreamed of owning a luxurious penthouse with your very own private pool? now it's the time to make it yours.
Located in a desirable quiet residential area of Birkirkara comes this three bedroom fully finished (including bathrooms and doors) Penthouse situated on the fourth floor in a block of only 4 units.
The property is already constructed and now in the finishing stage
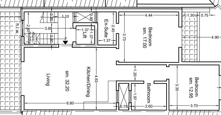
Featuring an open plan kitchen/dining/living plus pantry with a front terrace, box room, main bathroom, three bedrooms, including a master with a walk-in wardrobe.
The other two bedrooms each open onto a back terrace, with one of them featuring an ensuite bathroom.
This penthouse boasts its own private airspace, complete with an exclusive rooftop pool which is accessible exclusively from the front terrace.
This property is being offered finished including bathrooms and doors.
Optional garages are available at an extra price * 1 car at 55k .
Rooms and Features
Code
V022460
Locality
Birkirkara
Property type
Penthouse
Price
564,000 €
Locals
1
Bedrooms
3
Bathrooms
2
Sqm
280
Terraces
3
Floor
4
Energetic class
Nondescript
Property Conditions
New
Accessories:
Double Glazing, Laundry, Veranda
Photos • Floorplans • Video
Photos
Options
Print Property sheet
Send property sheet by mail
Schedule a visit
RealEstate Brokers
Schembri Maria Pawla
+356 7732 8183
+356 9998 6779
+356 9998 6775
pawla@sensaramalta.com
Information request
Name *
Phone *
E-mail *
Request Details *
I authorize the processing of my personal data according Regolamento UE n. 679/2016 -
Privacy Policy
I authorize the processing of data for marketing purposes, promotional activities, commercial offers and market surveys.
Send
Share on
We also recommend
for Sale
Tarxien – 3 Bedroom Penthouse (On Plan)
379,000 €
for Sale
Birkirkara - 3 Bedroom Penthouse + Views
530,000 €
for Sale
Birzebbugia – 2 Bedroom Penthouse + Full Roof + Airspace (On Plan)
385,000 €
Keep default settings X
Use of cookies
This site uses cookies. Our (own) cookies and those of our Partners (third party cookies) are used to offer you a unique experience with us. For this reason, together with our partners, we collect and process non-sensitive information (such as the identifier of your device or the pages you visit).
At any time you can delete, modify or verify the information you share in
Cookie preference
or in our
Cookie Policy
and
Privacy Policy
.
Necessary
Functional
Profiling
Analytics
Accept all
Decline all
Accept selected
Cookie preference