Toggle navigation
(+356) 2164 9500
(+356) 9998 6779
info@sensaramalta.com
Head Office - Sensara Malta
Triq Santa Marija, Safi
09.00 to 19.00 hrs
Monday to Saturday
Home
Properties
Sales
Rentals
Foreign
About us
Services
Contacts
Send your request
Previous
Next
385,000 €
CLICK HERE for DETAILED PHOTOS
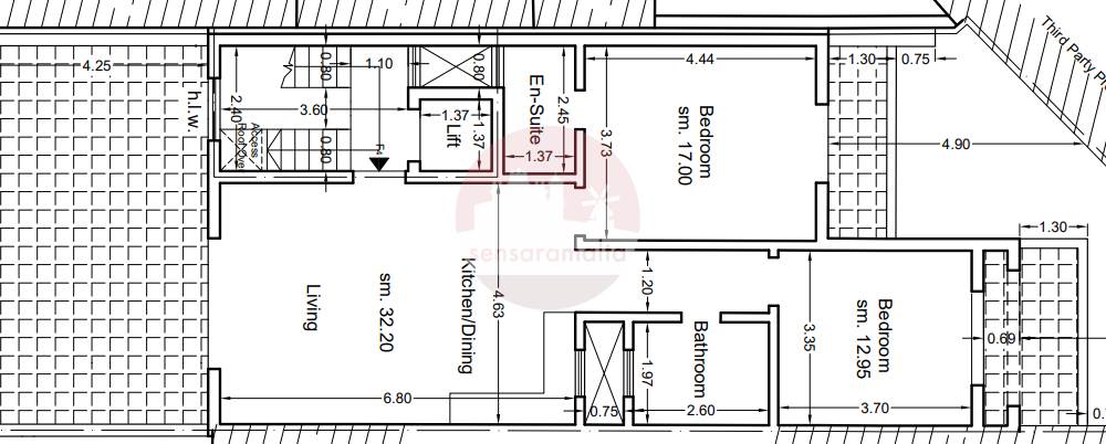
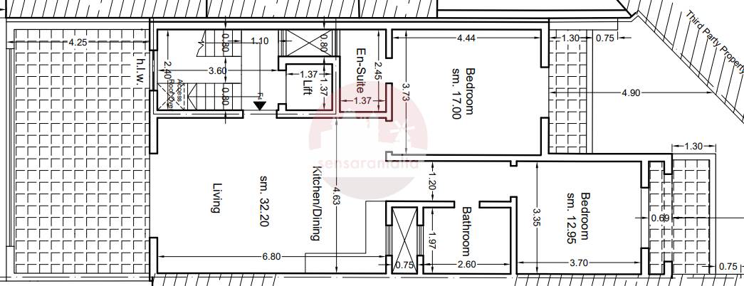
Birzebbugia – 2 Bedroom Penthouse + Full Roof + Airspace (On Plan)
Penthouse for sale • Birzebbuga
Offered on plan, with construction starting very soon, this penthouse forms part of an exclusive residential block of only four units, situated in a highly sought-after area.
The layout comprises a bright open-plan kitchen, dining, and living area leading onto a front terrace, two double bedrooms (main with en-suite), both enjoying access to back balconies, and a main bathroom.
This property also benefits from full ownership of its roof and airspace, offering excellent potential for outdoor entertaining.
The penthouse is being offered finished, excluding bathrooms and internal doors.
Freehold.
Rooms and Features
Code
V024745
Locality
Birzebbuga
Property type
Penthouse
Price
385,000 €
Locals
1
Bedrooms
2
Bathrooms
2
Sqm
88
Balconies
2
Terraces
1
sqm Terrace
43
Floor
4
Energetic class
Not applicable
Property Conditions
Next Realization
Accessories:
Double Glazing
Photos • Floorplans • Video
Photos
Options
Print Property sheet
Send property sheet by mail
Schedule a visit
RealEstate Brokers
Schembri Maria Pawla
+356 7732 8183
+356 9998 6779
+356 9998 6775
pawla@sensaramalta.com
Information request
Name *
Phone *
E-mail *
Request Details *
I authorize the processing of my personal data according Regolamento UE n. 679/2016 -
Privacy Policy
I authorize the processing of data for marketing purposes, promotional activities, commercial offers and market surveys.
Send
Share on
We also recommend
for Sale
Qrendi - 2 Bedroom Finished Penthouse On Plan with Roof and Airspace
461,000 €
for Sale
Zejtun - 1 Bedroom Penthouse Shell Form
270,000 €
for Sale
Zurrieq - 3 Bedroom Finished Penthouse, block under construction
480,000 €
Keep default settings X
Use of cookies
This site uses cookies. Our (own) cookies and those of our Partners (third party cookies) are used to offer you a unique experience with us. For this reason, together with our partners, we collect and process non-sensitive information (such as the identifier of your device or the pages you visit).
At any time you can delete, modify or verify the information you share in
Cookie preference
or in our
Cookie Policy
and
Privacy Policy
.
Necessary
Functional
Profiling
Analytics
Accept all
Decline all
Accept selected
Cookie preference