Toggle navigation
(+356) 2164 9500
(+356) 9998 6779
info@sensaramalta.com
Head Office - Sensara Malta
Triq Santa Marija, Safi
09.00 to 19.00 hrs
Monday to Saturday
Home
Properties
Sales
Rentals
Foreign
About us
Services
Contacts
Send your request
Previous
Next
390,000 €
CLICK HERE for DETAILED PHOTOS
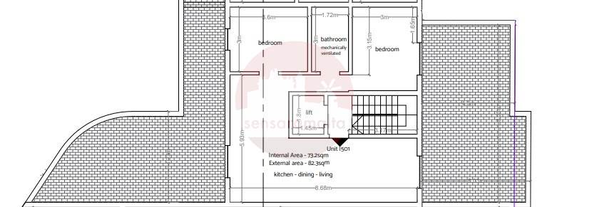
Qormi - 2 Bedroom Apartment On Plan Large Terraces
2 bedroom apartment for sale • Qormi
Situated in the heart of Qormi, this on plan apartment offers a fantastic opportunity to customize your dream home. To be sold in shell form, the property features a spacious squarish layout with two large terraces on either side, ideal for those searching for ample of outdoor space. This apartment boasts an open plan kitchen/dining/living, two well sized bedrooms and a main bathroom. Located in a prime area close to all amenities, this property is ideal for those looking to invest or create a personalized living space in a central and well located location.
Rooms and Features
Code
V021473
Locality
Qormi
Property type
2 bedroom apartment
Price
390,000 €
Locals
1
Bedrooms
2
Bathrooms
1
Sqm
155
Terraces
2
Floor
4
Energetic class
Nondescript
Photos • Floorplans • Video
Photos
Options
Print Property sheet
Send property sheet by mail
Schedule a visit
RealEstate Brokers
Aguis Lorna
+356 9961 6121
+356 9998 6779
+356 2164 9500
lorna@sensaramalta.com
Information request
Name *
Phone *
E-mail *
Request Details *
I authorize the processing of my personal data according Regolamento UE n. 679/2016 -
Privacy Policy
I authorize the processing of data for marketing purposes, promotional activities, commercial offers and market surveys.
Send
Share on
We also recommend
for Sale
Rabat - 2 Bedroom Finished Luxurious Apartment + Pool + Terrace + Views
820,000 €
for Sale
Birzebbugia - 2nd Floor 2/3 Bedroom Furnished Apartment + Half Roof
307,000 €
for Sale
Sannat Gozo - 2 Bedroom Shell Form Maisonette
190,000 €
Keep default settings X
Use of cookies
This site uses cookies. Our (own) cookies and those of our Partners (third party cookies) are used to offer you a unique experience with us. For this reason, together with our partners, we collect and process non-sensitive information (such as the identifier of your device or the pages you visit).
At any time you can delete, modify or verify the information you share in
Cookie preference
or in our
Cookie Policy
and
Privacy Policy
.
Necessary
Functional
Profiling
Analytics
Accept all
Decline all
Accept selected
Cookie preference