Toggle navigation
(+356) 2164 9500
(+356) 9998 6779
info@sensaramalta.com
Head Office - Sensara Malta
Triq Santa Marija, Safi
09.00 to 19.00 hrs
Monday to Saturday
Home
Properties
Sales
Rentals
Foreign
About us
Services
Contacts
Send your request
Previous
Next
216,000 €
CLICK HERE for DETAILED PHOTOS
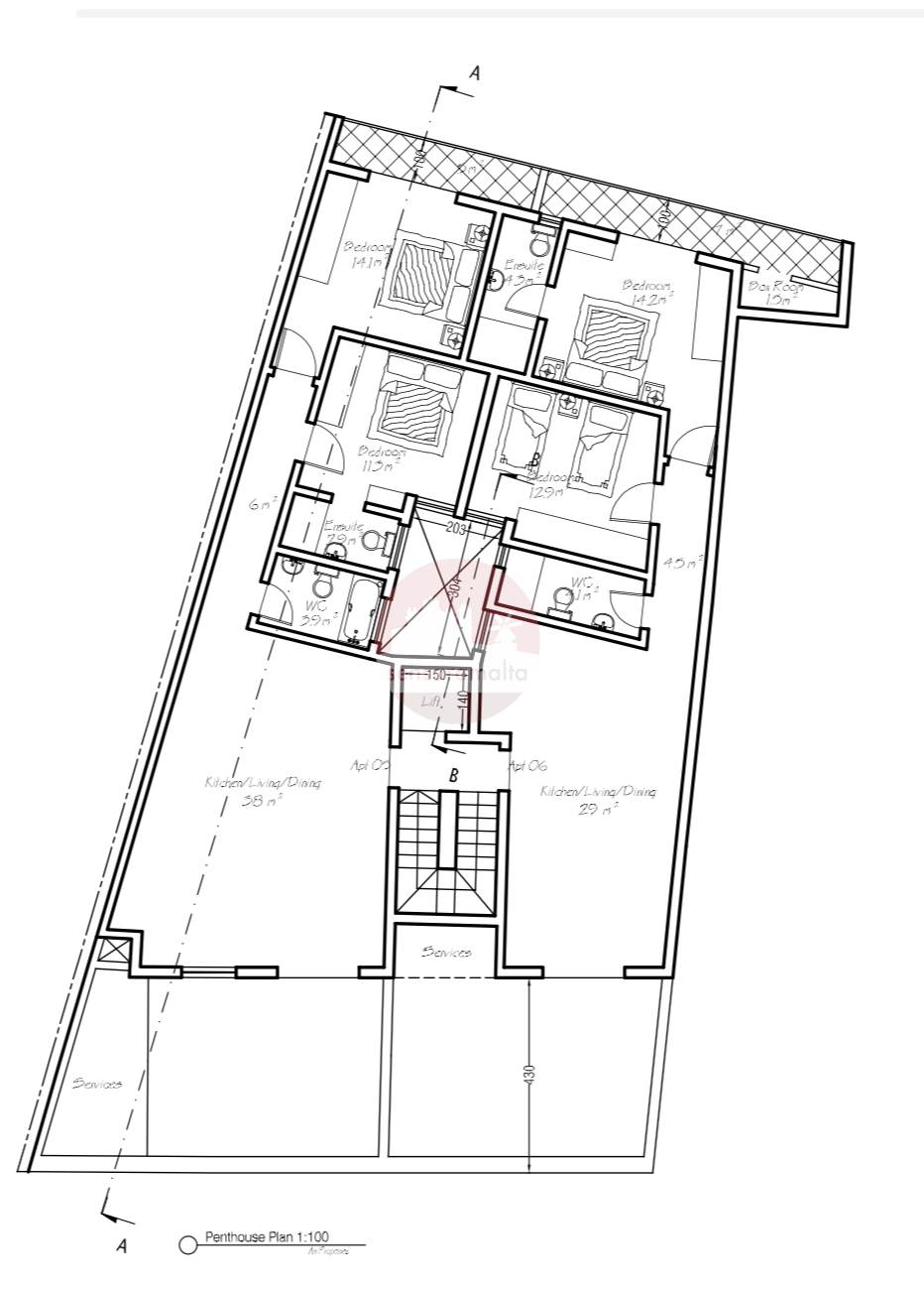
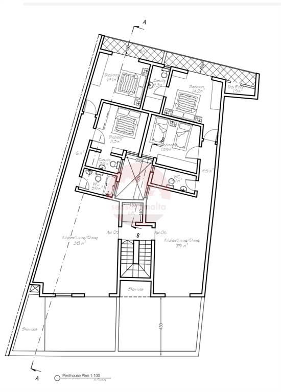
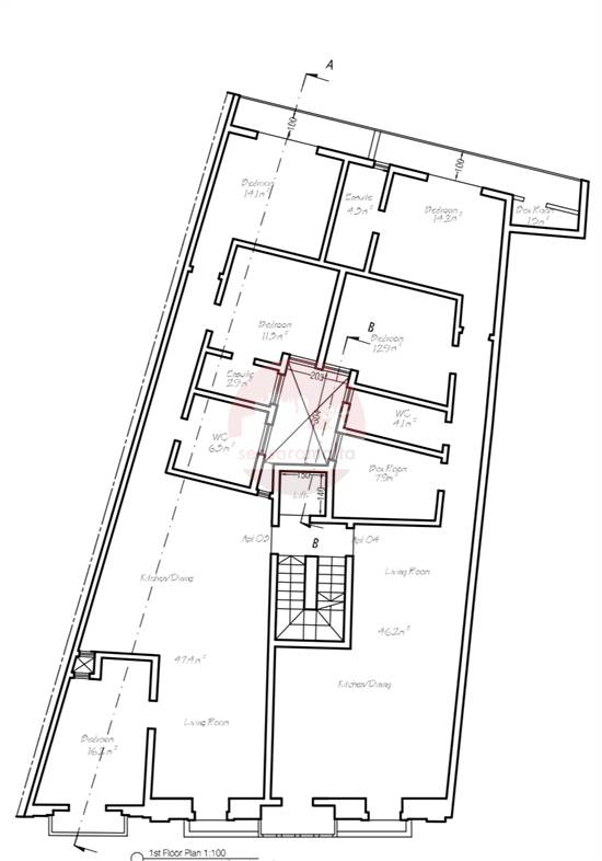
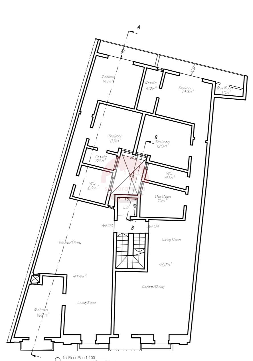
Gozo Nadur: 2/3 bedroom APARTMENTS/ PENTHOUSES (UCA AREA)
2 bedroom apartment for sale • Nadur Gozo
New on the Market: 2 & 3-Bedroom Apartments and 2 bedroom penthouses in a UCA Area in Nadur
Be among the first to secure a unit in this exclusive small development of six apartments, just meters away from the lively village square.
Perfect for those who love to be close to all amenities and enjoy the vibrant village lifestyle.
Property Features:
✅ 2 & 3-bedroom layouts available
✅ Two penthouses with spacious terraces
✅ Lift and fully finished common parts included
✅ Optional basement garages
✅ Located in a sought-after UCA area
Prices starting from €216,000
A rare opportunity not to be missed! Modern living, convenience, and charm all in one.
Contact us today for plans, availability, and viewings.
Rooms and Features
Code
V023261
Locality
Nadur Gozo
Property type
2 bedroom apartment
Price
216,000 €
Locals
1
Energetic class
Not applicable
Photos • Floorplans • Video
Photos
Options
Print Property sheet
Send property sheet by mail
Schedule a visit
RealEstate Brokers
Xiberras Joanie
+356 9985 2678
+356 9998 6779
+356 9998 6775
joanie.gozo@sensaramalta.com
Information request
Name *
Phone *
E-mail *
Request Details *
I authorize the processing of my personal data according Regolamento UE n. 679/2016 -
Privacy Policy
I authorize the processing of data for marketing purposes, promotional activities, commercial offers and market surveys.
Send
Share on
We also recommend
for Sale
Zabbar - Under Construction Ground Floor 2 Bedroom Fully Finished Apartment + Yard
282,000 €
for Sale
Rabat - 2 Bedroom Finished Luxurious Apartment + Pool + Terrace + Views
975,000 €
for Sale
Fgura - 2 Bedroom Apartment On Plan
267,000 €
Keep default settings X
Use of cookies
This site uses cookies. Our (own) cookies and those of our Partners (third party cookies) are used to offer you a unique experience with us. For this reason, together with our partners, we collect and process non-sensitive information (such as the identifier of your device or the pages you visit).
At any time you can delete, modify or verify the information you share in
Cookie preference
or in our
Cookie Policy
and
Privacy Policy
.
Necessary
Functional
Profiling
Analytics
Accept all
Decline all
Accept selected
Cookie preference