Toggle navigation
(+356) 2164 9500
(+356) 9998 6779
info@sensaramalta.com
Head Office - Sensara Malta
Triq Santa Marija, Safi
09.00 to 19.00 hrs
Monday to Saturday
Home
Properties
Sales
Rentals
Foreign
About us
Services
Contacts
Send your request
Previous
Next
330,000 €
CLICK HERE for DETAILED PHOTOS
San Pawl il-Bahar - 3rd Floor 3 Bedroom Apartment
3+ bedroom apartment for sale • San Pawl il-Bahar
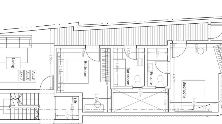
In the St Paul Bay Topaz Hotel Area, comes this 2nd Floor 3 Bedroom Apartment, Served with Lift, the block is already built and is being offered finished excluding bathrooms and internal doors.
Consists of 3 Bedrooms (Main Bedroom with Ensuite), open plan Kitchen / Dining / Living overlooking its front balcony, Boxroom, main Bathroom, and back terrace
The property owns perpetual Revisable ground rent which can be redeeme
Rooms and Features
Code
V017221
Locality
San Pawl il-Bahar
Property type
3+ bedroom apartment
Price
330,000 €
Locals
1
Bedrooms
3
Bathrooms
2
Sqm
138
Terraces
2
Floor
3
Energetic class
Nondescript
Photos • Floorplans • Video
Photos
Options
Print Property sheet
Send property sheet by mail
Schedule a visit
RealEstate Brokers
Schembri Maria Pawla
+356 7732 8183
+356 9998 6779
+356 9998 6775
pawla@sensaramalta.com
Information request
Name *
Phone *
E-mail *
Request Details *
I authorize the processing of my personal data according Regolamento UE n. 679/2016 -
Privacy Policy
I authorize the processing of data for marketing purposes, promotional activities, commercial offers and market surveys.
Send
Share on
We also recommend
for Sale
Attard - 3 Bedroom Fully Finished Apartment (On Plan)
440,000 €
for Sale
Gudja, 3 bedroom Finished Bright Apartment with 3 Balconies and Views
380,000 €
for Sale
Qrendi - 3 Bedroom 3rd Floor Finished Apartment On Plan
507,000 €
Keep default settings X
Use of cookies
This site uses cookies. Our (own) cookies and those of our Partners (third party cookies) are used to offer you a unique experience with us. For this reason, together with our partners, we collect and process non-sensitive information (such as the identifier of your device or the pages you visit).
At any time you can delete, modify or verify the information you share in
Cookie preference
or in our
Cookie Policy
and
Privacy Policy
.
Necessary
Functional
Profiling
Analytics
Accept all
Decline all
Accept selected
Cookie preference