Toggle navigation
(+356) 2164 9500
(+356) 9998 6779
info@sensaramalta.com
Head Office - Sensara Malta
Triq Santa Marija, Safi
09.00 to 19.00 hrs
Monday to Saturday
Home
Properties
Sales
Rentals
Foreign
About us
Services
Contacts
Send your request
Previous
Next
380,000 €
CLICK HERE for DETAILED PHOTOS
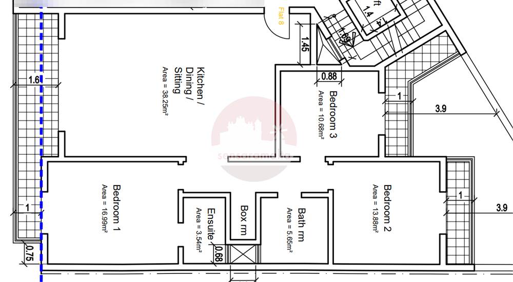
Gudja, 3 bedroom Finished Bright Apartment with 3 Balconies and Views
3+ bedroom apartment for sale • Gudja
Newly built and already finished, this bright 3-bedroom apartment is situated on the second floor in a very nice, quiet residential area.
The property enjoys plenty of natural light throughout, and all rooms are served with and lead onto a balcony, offering comfortable outdoor space from every corner of the home.
Even from the front terrace, there is a good distance from the opposite building, providing a more open and airy feel.
Upon entrance, one finds a large open plan kitchen/living/dining area leading onto a well-sized front terrace, ideal for everyday living and entertaining.
The sleeping quarters are set on the opposite side of the property, offering more privacy.
This area includes three double bedrooms, with the main bedroom served with an ensuite.
All bedrooms have their own balcony access.
A separate washroom further complements the layout.
The property is being sold finished, excluding bathrooms and internal doors.
Freehold.
Rooms and Features
Code
V024260
Locality
Gudja
Property type
3+ bedroom apartment
Price
380,000 €
Locals
1
Bedrooms
3
Bathrooms
2
Sqm
130
Balconies
2
Terraces
1
Floor
2
Energetic class
Not applicable
Property Conditions
New
Accessories:
Double Glazing, Laundry
Photos • Floorplans • Video
Photos
Options
Print Property sheet
Send property sheet by mail
Schedule a visit
RealEstate Brokers
Schembri Maria Pawla
+356 7732 8183
+356 9998 6779
+356 9998 6775
pawla@sensaramalta.com
Information request
Name *
Phone *
E-mail *
Request Details *
I authorize the processing of my personal data according Regolamento UE n. 679/2016 -
Privacy Policy
I authorize the processing of data for marketing purposes, promotional activities, commercial offers and market surveys.
Send
Share on
We also recommend
for Sale
Mosta - 175sqm 3 DBL Finished Apartment
543,000 €
for Sale
Fgura 169sqm 2nd floor 3 bedroom finished apartment On Plan
338,000 €
for Sale
Fgura - 3 Bedroom 158 sqm Shell Form Apartment 2nd Floor
292,000 €
Keep default settings X
Use of cookies
This site uses cookies. Our (own) cookies and those of our Partners (third party cookies) are used to offer you a unique experience with us. For this reason, together with our partners, we collect and process non-sensitive information (such as the identifier of your device or the pages you visit).
At any time you can delete, modify or verify the information you share in
Cookie preference
or in our
Cookie Policy
and
Privacy Policy
.
Necessary
Functional
Profiling
Analytics
Accept all
Decline all
Accept selected
Cookie preference