Toggle navigation
(+356) 2164 9500
(+356) 9998 6779
info@sensaramalta.com
Head Office - Sensara Malta
Triq Santa Marija, Safi
09.00 to 19.00 hrs
Monday to Saturday
Home
Properties
Sales
Rentals
Foreign
About us
Services
Contacts
Send your request
Previous
Next
310,000 €
CLICK HERE for DETAILED PHOTOS
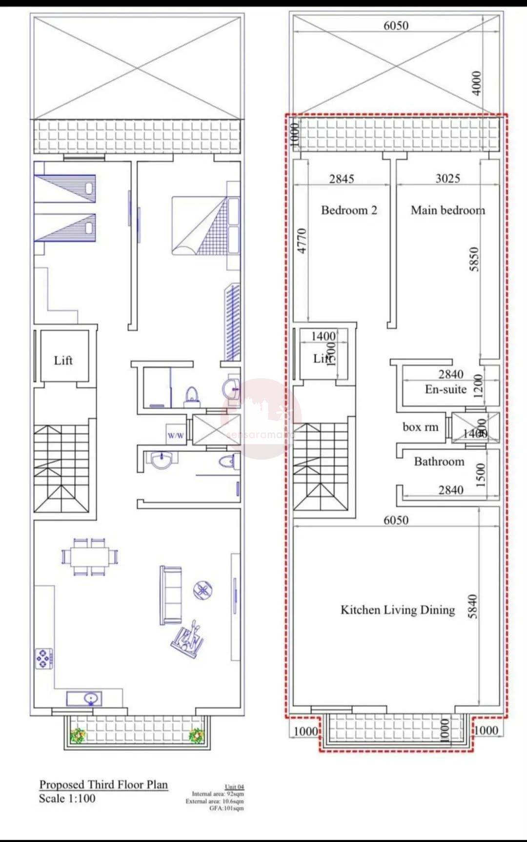
Tarxien finished 3rd floor 2 Bedroom Apartment
2 bedroom apartment for sale • Tarxien
New on the market and is being sold on plan comes this 3rd floor 2 Bedroom Apartment.
Property consist of kitchen/living/dining area on entrance and a front balcony, main bathroom, box room and 2 double bedrooms at the back with main enjoys an en-suite bathroom and both of them have the access for a good sized back terrace.
Being sold finished excluding bathrooms and internal doors by September 2027
Optional 1 car basement garage available for 50k.
Rooms and Features
Code
V024785
Locality
Tarxien
Property type
2 bedroom apartment
Price
310,000 €
Locals
1
Bedrooms
2
Bathrooms
2
Sqm
120
Floor
3
Energetic class
Not applicable
Property Conditions
New
Photos • Floorplans • Video
Photos
Options
Print Property sheet
Send property sheet by mail
Schedule a visit
RealEstate Brokers
Briffa Stephania
+356 7747 9456
+356 9998 6779
+356 9998 6775
stephania@sensaramalta.com
Information request
Name *
Phone *
E-mail *
Request Details *
I authorize the processing of my personal data according Regolamento UE n. 679/2016 -
Privacy Policy
I authorize the processing of data for marketing purposes, promotional activities, commercial offers and market surveys.
Send
Share on
We also recommend
for Sale
Burmarrad - 2 Bedroom Apartment
335,000 €
for Sale
Xemxija - 2 Bedroom 3rd Floor Finished Apartment On Plan
323,000 €
for Sale
Zebbug Gozo - 2 Bedroom Apartment Shell Form
318,000 €
Keep default settings X
Use of cookies
This site uses cookies. Our (own) cookies and those of our Partners (third party cookies) are used to offer you a unique experience with us. For this reason, together with our partners, we collect and process non-sensitive information (such as the identifier of your device or the pages you visit).
At any time you can delete, modify or verify the information you share in
Cookie preference
or in our
Cookie Policy
and
Privacy Policy
.
Necessary
Functional
Profiling
Analytics
Accept all
Decline all
Accept selected
Cookie preference