Toggle navigation
(+356) 2164 9500
(+356) 9998 6779
info@sensaramalta.com
Head Office - Sensara Malta
Triq Santa Marija, Safi
09.00 to 19.00 hrs
Monday to Saturday
Home
Properties
Sales
Rentals
Foreign
About us
Services
Contacts
Send your request
Previous
Next
170,000 €
CLICK HERE for DETAILED PHOTOS
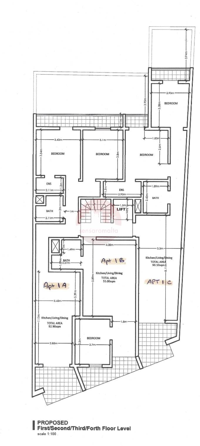
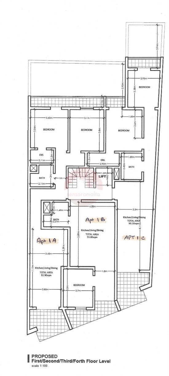
Marsalforn Gozo - 1 Bedroom Apartment + Unobstructed Country Side View (On Plan)
1 bedroom apartment for sale • Marsalforn Gozo
πΏπ‘ 1 Bedroom Apartments with Countryside Views π‘πΏ
β¨ Situated on the 1st & 2nd Floor
π Enjoy beautiful open countryside views
ποΈ 1 Comfortable Bedroom
π Bright & peaceful surroundings
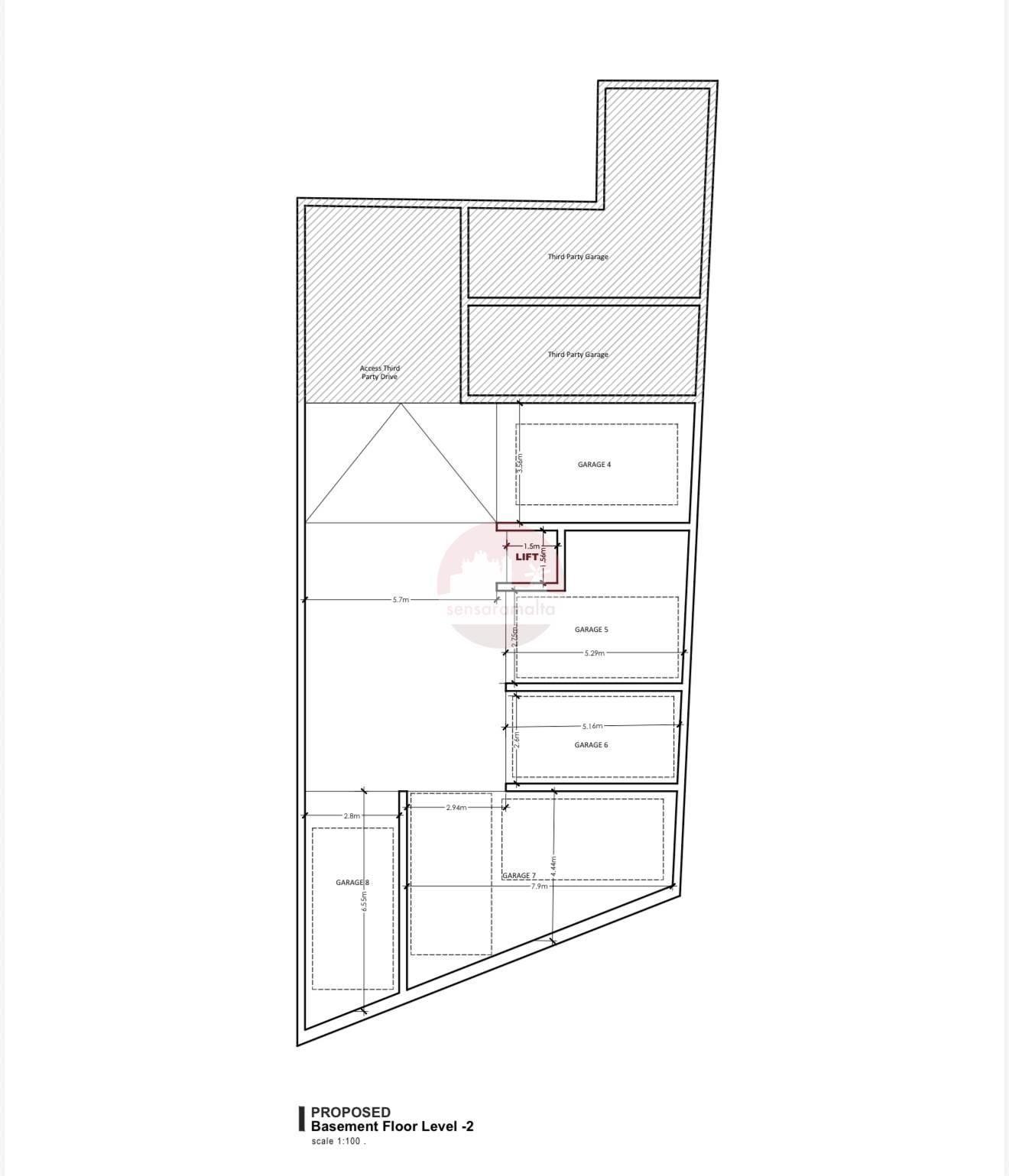
π Optional Garages Available
β β¬5,000 for lift & common parts
π« Ideal for first-time buyers, rentals, or a tranquil getaway home!
π Contact us today for more details or to book a viewing!
Rooms and Features
Code
V024780
Locality
Marsalforn Gozo
Property type
1 bedroom apartment
Price
170,000 €
Locals
1
Sqm
55
Energetic class
Not applicable
Photos • Floorplans • Video
Photos
Options
Print Property sheet
Send property sheet by mail
Schedule a visit
RealEstate Brokers
Xiberras Joanie
+356 9985 2678
+356 9998 6779
+356 9998 6775
joanie.gozo@sensaramalta.com
Information request
Name *
Phone *
E-mail *
Request Details *
I authorize the processing of my personal data according Regolamento UE n. 679/2016 -
Privacy Policy
I authorize the processing of data for marketing purposes, promotional activities, commercial offers and market surveys.
Send
Share on
We also recommend
for Sale
Paola - On Plan Shell Form 1 Bedroom Apartment
253,000 €
for Sale
Marsa - 1 Bedroom 3rd Floor Apartment On Plan
213,000 €
for Sale
Santa Venera - 1 Bedroom Furnished Penthouse
365,000 €
Keep default settings X
Use of cookies
This site uses cookies. Our (own) cookies and those of our Partners (third party cookies) are used to offer you a unique experience with us. For this reason, together with our partners, we collect and process non-sensitive information (such as the identifier of your device or the pages you visit).
At any time you can delete, modify or verify the information you share in
Cookie preference
or in our
Cookie Policy
and
Privacy Policy
.
Necessary
Functional
Profiling
Analytics
Accept all
Decline all
Accept selected
Cookie preference