Toggle navigation
(+356) 2164 9500
(+356) 9998 6779
info@sensaramalta.com
Head Office - Sensara Malta
Triq Santa Marija, Safi
09.00 to 19.00 hrs
Monday to Saturday
Home
Properties
Sales
Rentals
Foreign
About us
Services
Contacts
Send your request
Previous
Next
405,000 €
CLICK HERE for DETAILED PHOTOS
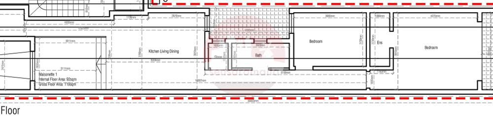
Naxxar - 2 Bedroom Ground Floor Finished Maisonette + Back and Internal Yard
Maisonette for sale • Naxxar
Currently on plan , comes this ground floor 2 bedroom maisonette which is being offered finished excluding bathrooms and internal doors and it is scheduled to be fully completed by August 2027 .
The layout comprises of a front open plan served with internal yard , store room , 2 double bedrooms of which main is being served with ensuit with back yard and master bathroom.
Freehold.
Rooms and Features
Code
V024734
Locality
Naxxar
Property type
Maisonette
Price
405,000 €
Locals
1
Bedrooms
2
Bathrooms
2
Sqm
119
Terraces
2
Energetic class
Not applicable
Property Conditions
New
Accessories:
Double Glazing
Photos • Floorplans • Video
Photos
Options
Print Property sheet
Send property sheet by mail
Schedule a visit
RealEstate Brokers
Schembri Maria Pawla
+356 7732 8183
+356 9998 6779
+356 9998 6775
pawla@sensaramalta.com
Information request
Name *
Phone *
E-mail *
Request Details *
I authorize the processing of my personal data according Regolamento UE n. 679/2016 -
Privacy Policy
I authorize the processing of data for marketing purposes, promotional activities, commercial offers and market surveys.
Send
Share on
We also recommend
for Sale
Fgura, 1st floor Maisonette with airspace / possibility to build further floors
500,000 €
for Sale
Zabbar - Elevated 2 Bedroom Furnished Maisonette
340,000 €
for Sale
Birzebbugia - 1st Floor 3 Bedroom Maisonette + Roof + Airspace + Optional Garage
564,000 €
Keep default settings X
Use of cookies
This site uses cookies. Our (own) cookies and those of our Partners (third party cookies) are used to offer you a unique experience with us. For this reason, together with our partners, we collect and process non-sensitive information (such as the identifier of your device or the pages you visit).
At any time you can delete, modify or verify the information you share in
Cookie preference
or in our
Cookie Policy
and
Privacy Policy
.
Necessary
Functional
Profiling
Analytics
Accept all
Decline all
Accept selected
Cookie preference