Toggle navigation
(+356) 2164 9500
(+356) 9998 6779
info@sensaramalta.com
Head Office - Sensara Malta
Triq Santa Marija, Safi
09.00 to 19.00 hrs
Monday to Saturday
Home
Properties
Sales
Rentals
Foreign
About us
Services
Contacts
Send your request
Previous
Next
303,000 €
CLICK HERE for DETAILED PHOTOS
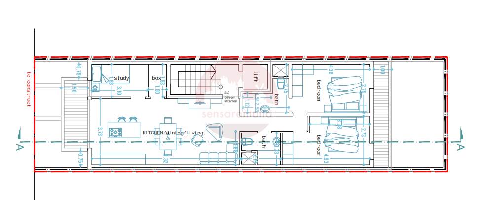
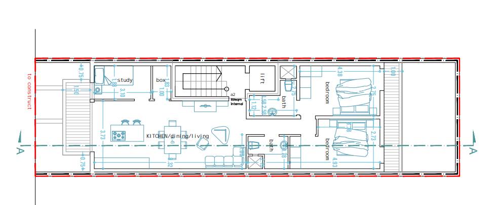
Zabbar - 2 Bedroom + Study Finished Apartment + Front & Back Balcony
3+ bedroom apartment for sale • Zabbar
Presently on plan comes this 2 bedroom + study apartment, forming part of a small blook of just 4 units, situated on the first floor and served with lift.
Property consists of an open plan kitchen/living/dining area leading to a spacious balcony on facade, main bathroom, 2 double bedrooms, main with en-suite and a back drying terrace.
This apartment is being offered finished excluding bathrooms and doors and it is Freehold.
Completion date approx end 2027.
Rooms and Features
Code
V024731
Locality
Zabbar
Property type
3+ bedroom apartment
Price
303,000 €
Locals
1
Bedrooms
3
Sqm
102
Floor
1
Energetic class
Nondescript
Photos • Floorplans • Video
Photos
Options
Print Property sheet
Send property sheet by mail
Schedule a visit
RealEstate Brokers
Schembri Josianne
+356 7782 4222
+356 9998 6779
+356 9998 6775
josianne@sensaramalta.com
Information request
Name *
Phone *
E-mail *
Request Details *
I authorize the processing of my personal data according Regolamento UE n. 679/2016 -
Privacy Policy
I authorize the processing of data for marketing purposes, promotional activities, commercial offers and market surveys.
Send
Share on
We also recommend
for Sale
Zejtun - 3 Bedroom Apartment - Furnished
308,000 €
for Sale
Lija - 3 Bedroom 3rd Floor Finished Apartment On Plan
474,000 €
for Sale
Mosta - 3 Bedroom 3rd Floor Finished Apartment On Plan
430,000 €
Keep default settings X
Use of cookies
This site uses cookies. Our (own) cookies and those of our Partners (third party cookies) are used to offer you a unique experience with us. For this reason, together with our partners, we collect and process non-sensitive information (such as the identifier of your device or the pages you visit).
At any time you can delete, modify or verify the information you share in
Cookie preference
or in our
Cookie Policy
and
Privacy Policy
.
Necessary
Functional
Profiling
Analytics
Accept all
Decline all
Accept selected
Cookie preference