Toggle navigation
(+356) 2164 9500
(+356) 9998 6779
info@sensaramalta.com
Head Office - Sensara Malta
Triq Santa Marija, Safi
09.00 to 19.00 hrs
Monday to Saturday
Home
Properties
Sales
Rentals
Foreign
About us
Services
Contacts
Send your request
Previous
Next
250,500 €
CLICK HERE for DETAILED PHOTOS
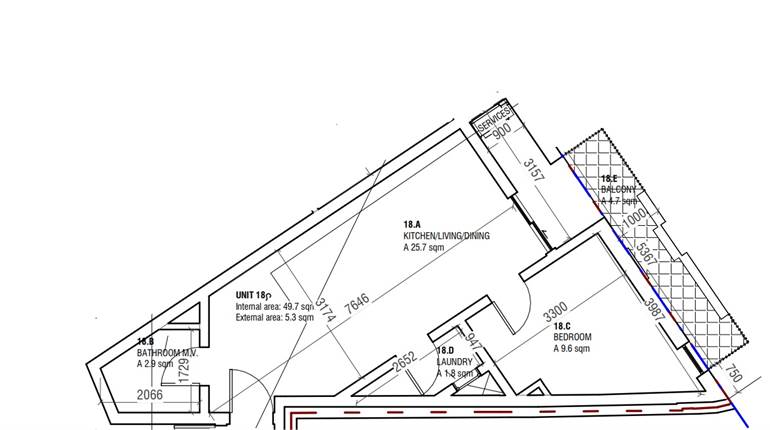
Msida - 1 Bedroom 3rd Floor Finished Apartment On Plan
1 bedroom apartment for sale • Msida
Located in Msida, one-bedroom fully finished apartment, currently available on plan.
The layout comprises of an open plan kitchen/dining/living with a front balcony, main bathroom, a laundry room and a double-bedroom.
This property is being offered fully finished including bathrooms and internal doors and is estimate to be completed by 2027. An optional street level one car garage is available at an extra price of 75k.
Rooms and Features
Code
V024500
Locality
Msida
Property type
1 bedroom apartment
Price
250,500 €
Locals
1
Bedrooms
1
Bathrooms
1
Sqm
55
Balconies
1
Floor
3
Energetic class
Nondescript
Property Conditions
Next Realization
Photos • Floorplans • Video
Photos
Options
Print Property sheet
Send property sheet by mail
Schedule a visit
RealEstate Brokers
Hughes Jeffrey
+356 9980 0004
+356 9998 6779
+356 9998 6775
hughes@sensaramalta.com
Information request
Name *
Phone *
E-mail *
Request Details *
I authorize the processing of my personal data according Regolamento UE n. 679/2016 -
Privacy Policy
I authorize the processing of data for marketing purposes, promotional activities, commercial offers and market surveys.
Send
Share on
We also recommend
for Sale
Paola 2nd floor 1 Bedroom Apartment
177,000 €
for Sale
Msida - 1 Bedroom 4th Floor Finished Apartment On Plan
255,000 €
for Sale
Paola corner 2nd floor 1 bedroom Apartment
178,000 €
Keep default settings X
Use of cookies
This site uses cookies. Our (own) cookies and those of our Partners (third party cookies) are used to offer you a unique experience with us. For this reason, together with our partners, we collect and process non-sensitive information (such as the identifier of your device or the pages you visit).
At any time you can delete, modify or verify the information you share in
Cookie preference
or in our
Cookie Policy
and
Privacy Policy
.
Necessary
Functional
Profiling
Analytics
Accept all
Decline all
Accept selected
Cookie preference