Toggle navigation
(+356) 2164 9500
(+356) 9998 6779
info@sensaramalta.com
Head Office - Sensara Malta
Triq Santa Marija, Safi
09.00 to 19.00 hrs
Monday to Saturday
Home
Properties
Sales
Rentals
Foreign
About us
Services
Contacts
Send your request
Previous
Next
445,500 €
CLICK HERE for DETAILED PHOTOS
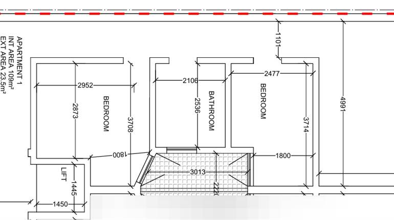
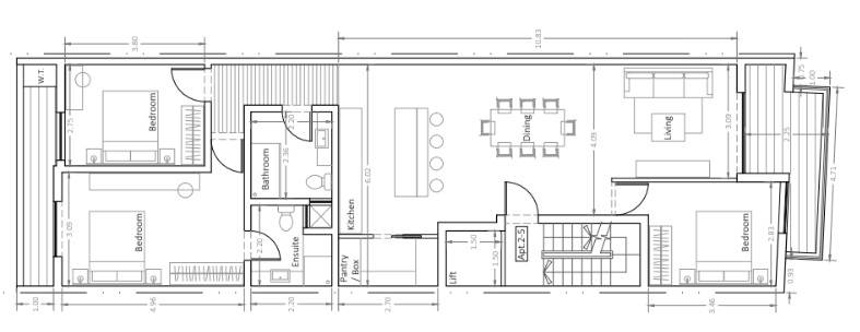
Qrendi - 3 Bedroom 2nd Floor Finished Apartment On Plan
3+ bedroom apartment for sale • Qrendi
Situated in the tranquil village of Qrendi, located on the second floor three-bedroom finished apartment, currently available on plan.
The layout comprises of an open plan kitchen/dining/living with a front terrace, a laundry room, main bathroom, and three-double bedrooms, two of the bedrooms are connected to a private balcony. The master bedroom includes an ensuite bathroom.
This apartment is being offered finished excluding bathrooms and internal doors and is estimate to be completed by 2027. Optional garages are available at an extra price, starting from 87k.
Rooms and Features
Code
V024445
Locality
Qrendi
Property type
3+ bedroom apartment
Price
445,500 €
Locals
1
Bedrooms
3
Bathrooms
2
Sqm
131
Balconies
2
Floor
2
Energetic class
Nondescript
Photos • Floorplans • Video
Photos
Options
Print Property sheet
Send property sheet by mail
Schedule a visit
RealEstate Brokers
Aguis Lorna
+356 9961 6121
+356 9998 6779
+356 2164 9500
lorna@sensaramalta.com
Information request
Name *
Phone *
E-mail *
Request Details *
I authorize the processing of my personal data according Regolamento UE n. 679/2016 -
Privacy Policy
I authorize the processing of data for marketing purposes, promotional activities, commercial offers and market surveys.
Send
Share on
We also recommend
for Sale
Rabat - 3 Bedroom Finished Luxurious Apartment + Pool, Ready Built
1,650,000 €
for Sale
3+ bedroom apartment for sale in Marsascala
380,000 €
for Sale
Mosta - 3 Bedroom Finished 2nd Floor Apartment On Plan
406,500 €
Keep default settings X
Use of cookies
This site uses cookies. Our (own) cookies and those of our Partners (third party cookies) are used to offer you a unique experience with us. For this reason, together with our partners, we collect and process non-sensitive information (such as the identifier of your device or the pages you visit).
At any time you can delete, modify or verify the information you share in
Cookie preference
or in our
Cookie Policy
and
Privacy Policy
.
Necessary
Functional
Profiling
Analytics
Accept all
Decline all
Accept selected
Cookie preference