Toggle navigation
(+356) 2164 9500
(+356) 9998 6779
info@sensaramalta.com
Head Office - Sensara Malta
Triq Santa Marija, Safi
09.00 to 19.00 hrs
Monday to Saturday
Home
Properties
Sales
Rentals
Foreign
About us
Services
Contacts
Send your request
Previous
Next
650,000 €
CLICK HERE for DETAILED PHOTOS
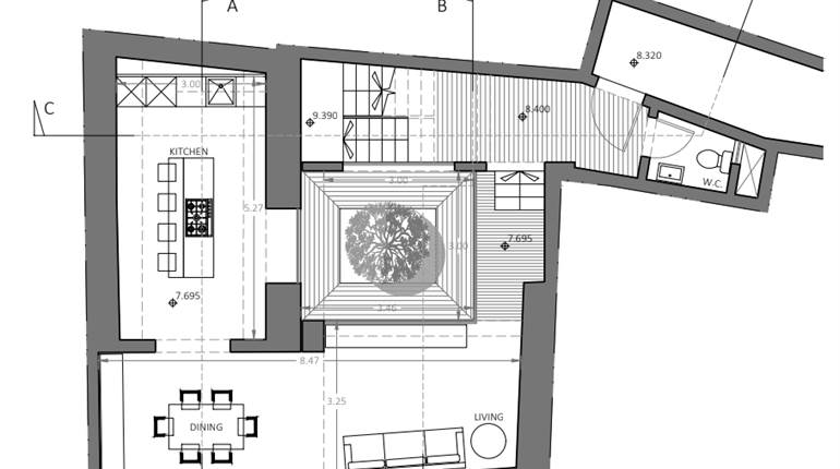
Zejtun - Fully Converted Townhouse in UCA - Semi-Furnished
House of Character for sale • Zejtun
A recently renovated and fully converted House of Character located within the UCA of Żejtun, offered semi-furnished and freehold.
This property enjoys two separate entrances and comprises a welcoming living area, guest toilet, fully equipped kitchen, and a private yard. At basement level, one finds a cellar featuring beautiful original arches, adding character to the home.
A staircase leads to the upper floor, where one finds two bedrooms ( main bedroom with balcony), a spacious bathroom, and a spiral staircase leading to the roof terrace.
A Viewing is a must to fully appreciate the quality of works and thoughtful conversion of this property.
Rooms and Features
Code
V024440
Locality
Zejtun
Property type
House of Character
Price
650,000 €
Locals
1
Bedrooms
2
Bathrooms
2
Sqm
110
Terraces
1
Energetic class
Nondescript
Photos • Floorplans • Video
Photos
Options
Print Property sheet
Send property sheet by mail
Schedule a visit
RealEstate Brokers
Jenkins Rita
+356 7712 7772
+356 9998 6779
+356 9998 6775
rita@sensaramalta.com
Information request
Name *
Phone *
E-mail *
Request Details *
I authorize the processing of my personal data according Regolamento UE n. 679/2016 -
Privacy Policy
I authorize the processing of data for marketing purposes, promotional activities, commercial offers and market surveys.
Send
Share on
We also recommend
for Sale
Xewkija Gozo - 4 Bedroom Farmhouse + Pool + Garden
380,000 €
for Sale
Zejtun - 4 Bedroom Unconverted House Of Character + Pool
410,000 €
for Sale
Zebbug - Unconverted House of Character
725,000 €
Keep default settings X
Use of cookies
This site uses cookies. Our (own) cookies and those of our Partners (third party cookies) are used to offer you a unique experience with us. For this reason, together with our partners, we collect and process non-sensitive information (such as the identifier of your device or the pages you visit).
At any time you can delete, modify or verify the information you share in
Cookie preference
or in our
Cookie Policy
and
Privacy Policy
.
Necessary
Functional
Profiling
Analytics
Accept all
Decline all
Accept selected
Cookie preference