Toggle navigation
(+356) 2164 9500
(+356) 9998 6779
info@sensaramalta.com
Head Office - Sensara Malta
Triq Santa Marija, Safi
09.00 to 19.00 hrs
Monday to Saturday
Home
Properties
Sales
Rentals
Foreign
About us
Services
Contacts
Send your request
Previous
Next
461,000 €
CLICK HERE for DETAILED PHOTOS
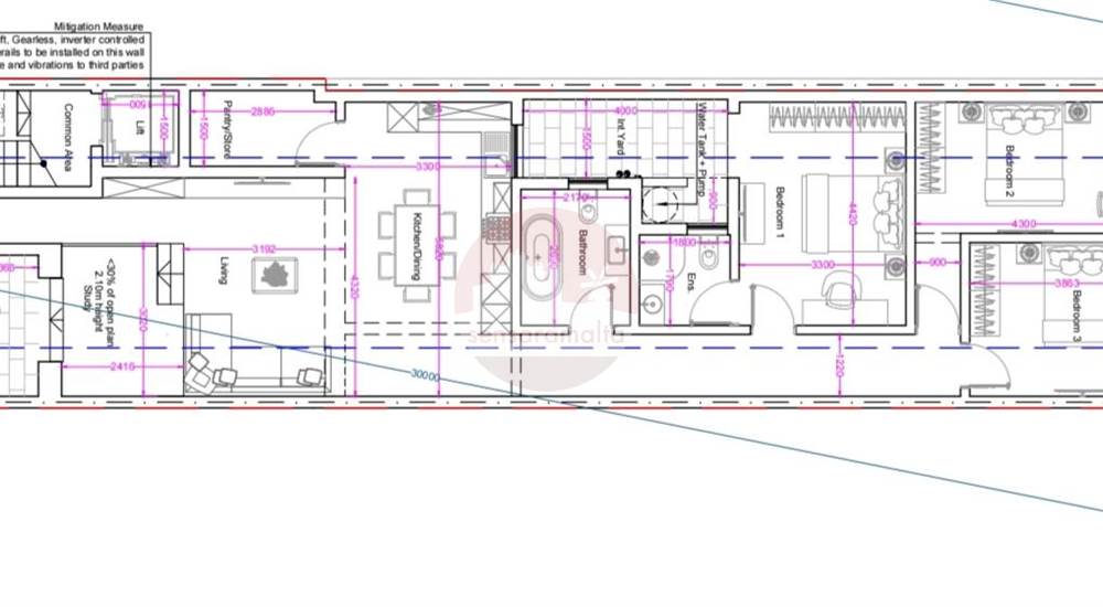
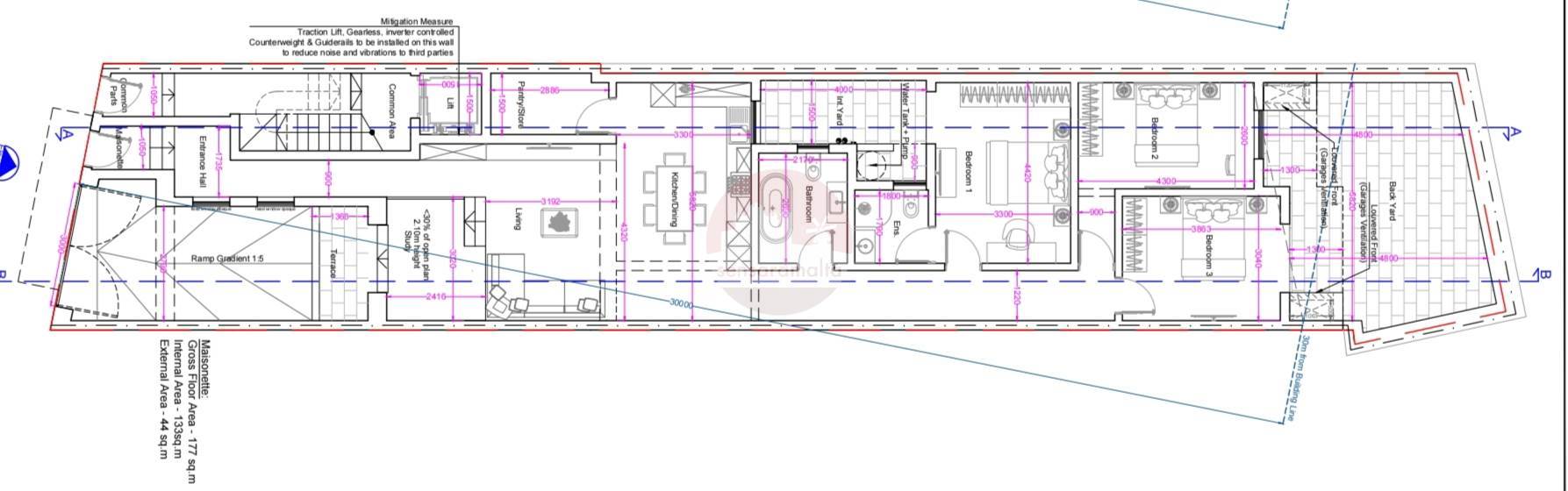
Ghaxaq - 3 Bedroom Elevated Maisonette Finished (On Plan)
Maisonette for sale • Ghaxaq
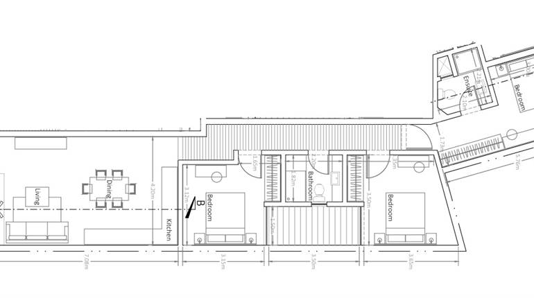
Consists of it's own private door for added privacy, upon entering open plan kitchen/dining/living, front terrace, main bathroom, pantry/store, internal yard and two double bedrooms both of them connected to the backyard. Master bedroom includes an ensuite bathroom and a walk-in-wardrobe.
This property is being offered finished excluding bathrooms and doors and is estimated to be completed by 2027.
Optional garages are available starting from 82k
Rooms and Features
Code
V024301
Locality
Ghaxaq
Property type
Maisonette
Price
461,000 €
Locals
1
Bedrooms
3
Bathrooms
2
Sqm
177
Energetic class
Nondescript
Accessories:
Elevator, Double Glazing, Laundry
Photos • Floorplans • Video
Photos
Options
Print Property sheet
Send property sheet by mail
Schedule a visit
RealEstate Brokers
Grima Keith
+356 7902 0587
+356 9998 6775
+356 9998 6779
keith@sensaramalta.com
Information request
Name *
Phone *
E-mail *
Request Details *
I authorize the processing of my personal data according Regolamento UE n. 679/2016 -
Privacy Policy
I authorize the processing of data for marketing purposes, promotional activities, commercial offers and market surveys.
Send
Share on
We also recommend
for Sale
Marsascala - 3 Bedroom Elevated Ground Floor Maisonette
532,500 €
for Sale
Ghaxaq - 3 Bedroom Maisonette + Large Outdoor
512,000 €
for Sale
Qrendi - 3 Bedroom Elevated Finished Maisonette On Plan
461,000 €
Keep default settings X
Use of cookies
This site uses cookies. Our (own) cookies and those of our Partners (third party cookies) are used to offer you a unique experience with us. For this reason, together with our partners, we collect and process non-sensitive information (such as the identifier of your device or the pages you visit).
At any time you can delete, modify or verify the information you share in
Cookie preference
or in our
Cookie Policy
and
Privacy Policy
.
Necessary
Functional
Profiling
Analytics
Accept all
Decline all
Accept selected
Cookie preference