Toggle navigation
(+356) 2164 9500
(+356) 9998 6779
info@sensaramalta.com
Head Office - Sensara Malta
Triq Santa Marija, Safi
09.00 to 19.00 hrs
Monday to Saturday
Home
Properties
Sales
Rentals
Foreign
About us
Services
Contacts
Send your request
Previous
Next
365,000 €
CLICK HERE for DETAILED PHOTOS
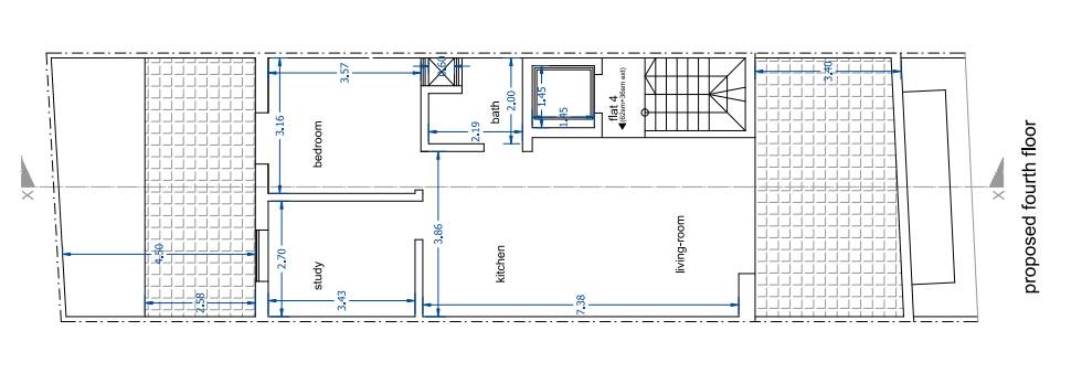
Ghaxaq - 1 Bedroom + Study Penthouse / Back & Front Terrace / Airspace Incl.
Penthouse for sale • Ghaxaq
In Ghaxaq comes this 4th floor 1 bedroom + study Penthouse being sold on plan at a fantastic pre construction price
Comprising an open-plan kitchen/dining/living area leading to a spacious front terrace, main bedroom and study room both overlooking a back terrace and main bathroom.
This unit is being offered finished excluding bathrooms & doors.. Estimated to be completed in shell form by approx Sept 2026
This apartment is ideal for first-time buyers seeking a future home or investors looking for a well-located, high-demand rental property.
Freehold
Rooms and Features
Code
V024298
Locality
Ghaxaq
Property type
Penthouse
Price
365,000 €
Locals
1
Bedrooms
2
Bathrooms
1
Sqm
98
Terraces
2
sqm Terrace
36
Floor
4
Energetic class
Nondescript
Property Conditions
New
Photos • Floorplans • Video
Photos
Options
Print Property sheet
Send property sheet by mail
Schedule a visit
RealEstate Brokers
Schembri Josianne
+356 7782 4222
+356 9998 6779
+356 9998 6775
josianne@sensaramalta.com
Information request
Name *
Phone *
E-mail *
Request Details *
I authorize the processing of my personal data according Regolamento UE n. 679/2016 -
Privacy Policy
I authorize the processing of data for marketing purposes, promotional activities, commercial offers and market surveys.
Send
Share on
We also recommend
for Sale
Birzebbuga - 2 Bedroom Finished Penthouse On Plan
445,500 €
for Sale
Zurrieq - 202sqm 3 Bedroom Finished Penthouse + Airspace
575,000 €
for Sale
Zabbar - 2 Bedroom Furnished Penthouse
385,000 €
Keep default settings X
Use of cookies
This site uses cookies. Our (own) cookies and those of our Partners (third party cookies) are used to offer you a unique experience with us. For this reason, together with our partners, we collect and process non-sensitive information (such as the identifier of your device or the pages you visit).
At any time you can delete, modify or verify the information you share in
Cookie preference
or in our
Cookie Policy
and
Privacy Policy
.
Necessary
Functional
Profiling
Analytics
Accept all
Decline all
Accept selected
Cookie preference