Toggle navigation
(+356) 2164 9500
(+356) 9998 6779
info@sensaramalta.com
Head Office - Sensara Malta
Triq Santa Marija, Safi
09.00 to 19.00 hrs
Monday to Saturday
Home
Properties
Sales
Rentals
Foreign
About us
Services
Contacts
Send your request
Previous
Next
461,000 €
CLICK HERE for DETAILED PHOTOS
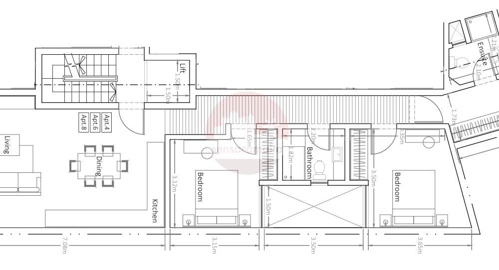
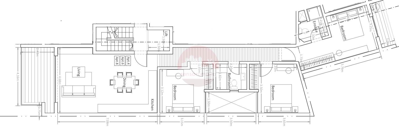
Qrendi - 3 Bedroom 1st Floor Finished Apartment On Plan
3+ bedroom apartment for sale • Qrendi
Located on the first floor, three-bedroom finished apartment, currently available on plan.
The layout comprises of an open plan kitchen/dining/living with a front terrace followed by a corridor, main bathroom and three double bedrooms. The master bedroom includes an ensuite bathroom and a private balcony.
This property is being offered finished excluding bathrooms and internal doors and is estimate to be completed by 2027.
Rooms and Features
Code
V024266
Locality
Qrendi
Property type
3+ bedroom apartment
Price
461,000 €
Locals
1
Bedrooms
3
Bathrooms
2
Sqm
118
Balconies
2
Floor
1
Energetic class
Nondescript
Photos • Floorplans • Video
Photos
Options
Print Property sheet
Send property sheet by mail
Schedule a visit
RealEstate Brokers
Sensara Jessica
+356 7939 4933
jessica@sensaramalta.com
Information request
Name *
Phone *
E-mail *
Request Details *
I authorize the processing of my personal data according Regolamento UE n. 679/2016 -
Privacy Policy
I authorize the processing of data for marketing purposes, promotional activities, commercial offers and market surveys.
Send
Share on
We also recommend
for Sale
Munxar Gozo - 3 Bedroom Partly Finished Apartment
338,000 €
for Sale
Gudja - 3 Bedroom Finished Bright Apartment + 3 Balconies + Views
380,000 €
for Sale
Santa Marija Estate - 3 Bedroom Second Floor Fully Finished Apartment
1,900,000 €
Keep default settings X
Use of cookies
This site uses cookies. Our (own) cookies and those of our Partners (third party cookies) are used to offer you a unique experience with us. For this reason, together with our partners, we collect and process non-sensitive information (such as the identifier of your device or the pages you visit).
At any time you can delete, modify or verify the information you share in
Cookie preference
or in our
Cookie Policy
and
Privacy Policy
.
Necessary
Functional
Profiling
Analytics
Accept all
Decline all
Accept selected
Cookie preference