Toggle navigation
(+356) 2164 9500
(+356) 9998 6779
info@sensaramalta.com
Head Office - Sensara Malta
Triq Santa Marija, Safi
09.00 to 19.00 hrs
Monday to Saturday
Home
Properties
Sales
Rentals
Foreign
About us
Services
Contacts
Send your request
Previous
Next
256,000 €
CLICK HERE for DETAILED PHOTOS
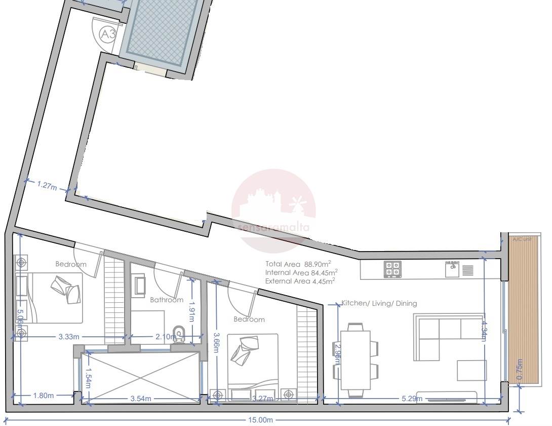
Zabbar - 2 Bedroom First Floor Apartment - Ready Build - Shell Form
2 bedroom apartment for sale • Zabbar
A first-floor two-bedroom apartment offered in shell form, providing an excellent opportunity to customize the interior to your own taste. The layout comprises two spacious double bedrooms, one of which with an en-suite, a separate guest bathroom, and an open-plan kitchen, dining, and living area. This bright living space opens onto a terrace, ideal for outdoor relaxation.
Rooms and Features
Code
V023956
Locality
Zabbar
Property type
2 bedroom apartment
Price
256,000 €
Locals
1
Bedrooms
2
Bathrooms
2
Sqm
89
Balconies
1
Floor
1
Energetic class
Nondescript
Photos • Floorplans • Video
Photos
Options
Print Property sheet
Send property sheet by mail
Schedule a visit
RealEstate Brokers
Dimech Miriam
+356 7904 6848
+356 9998 6779
+356 9998 6775
miriamd@sensaramalta.com
Information request
Name *
Phone *
E-mail *
Request Details *
I authorize the processing of my personal data according Regolamento UE n. 679/2016 -
Privacy Policy
I authorize the processing of data for marketing purposes, promotional activities, commercial offers and market surveys.
Send
Share on
We also recommend
for Sale
Msida - 2 Bedroom Second Floor Finished Apartment On Plan
302,000 €
for Sale
Mellieha Ghadira – 2 Bedroom Highly Finished Apartment
443,000 €
for Sale
Paola - 2 Bedroom Penthouse Shell Form
285,000 €
Keep default settings X
Use of cookies
This site uses cookies. Our (own) cookies and those of our Partners (third party cookies) are used to offer you a unique experience with us. For this reason, together with our partners, we collect and process non-sensitive information (such as the identifier of your device or the pages you visit).
At any time you can delete, modify or verify the information you share in
Cookie preference
or in our
Cookie Policy
and
Privacy Policy
.
Necessary
Functional
Profiling
Analytics
Accept all
Decline all
Accept selected
Cookie preference