Toggle navigation
(+356) 2164 9500
(+356) 9998 6779
info@sensaramalta.com
Head Office - Sensara Malta
Triq Santa Marija, Safi
09.00 to 19.00 hrs
Monday to Saturday
Home
Properties
Sales
Rentals
Foreign
About us
Services
Contacts
Send your request
Previous
Next
320,000 €
CLICK HERE for DETAILED PHOTOS
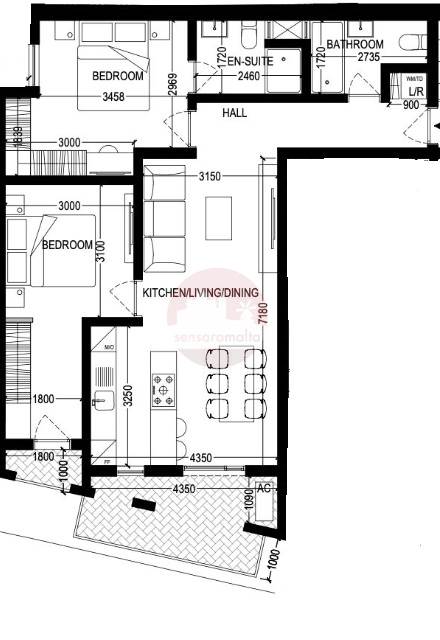
Kirkop - 2 Bedroom 2nd Floor Fully Finished Apartment On Plan
2 bedroom apartment for sale • Kirkop
In Kirkop comes an on-plan second-floor two-bedroom apartment is estimated to be completed by the end of 2027.
The layout comprsies of and open plan K/D/L with a front terrace, main bathroom, and two double bedrooms. The main bedroom includes an en-suite, and the second bedroom has its own balcony.
This property will be sold fully finished, including bathrooms and internal doors. Optional garages are available at an extra price starting from 55K
Rooms and Features
Code
V023947
Locality
Kirkop
Property type
2 bedroom apartment
Price
320,000 €
Locals
1
Bedrooms
2
Bathrooms
2
Sqm
91
Balconies
2
Floor
2
Energetic class
Nondescript
Photos • Floorplans • Video
Photos
Options
Print Property sheet
Send property sheet by mail
Schedule a visit
RealEstate Brokers
Caruana Dylan
+356 9960 6829
+356 9998 6779
+356 2164 9500
dylan@sensaramalta.com
Information request
Name *
Phone *
E-mail *
Request Details *
I authorize the processing of my personal data according Regolamento UE n. 679/2016 -
Privacy Policy
I authorize the processing of data for marketing purposes, promotional activities, commercial offers and market surveys.
Send
Share on
We also recommend
for Sale
Tarxien - 3rd Floor 2 Bedroom Apartment - On Plan
267,000 €
for Sale
Dingli - 3rd Floor 2 Bedroom Apartment - Shell Form
260,000 €
for Sale
Zabbar - Under Construction, 2 bedrooms 2nd Floor fully Finished Apartment
325,000 €
Keep default settings X
Use of cookies
This site uses cookies. Our (own) cookies and those of our Partners (third party cookies) are used to offer you a unique experience with us. For this reason, together with our partners, we collect and process non-sensitive information (such as the identifier of your device or the pages you visit).
At any time you can delete, modify or verify the information you share in
Cookie preference
or in our
Cookie Policy
and
Privacy Policy
.
Necessary
Functional
Profiling
Analytics
Accept all
Decline all
Accept selected
Cookie preference