Toggle navigation
(+356) 2164 9500
(+356) 9998 6779
info@sensaramalta.com
Head Office - Sensara Malta
Triq Santa Marija, Safi
09.00 to 19.00 hrs
Monday to Saturday
Home
Properties
Sales
Rentals
Foreign
About us
Services
Contacts
Send your request
Previous
Next
369,000 €
CLICK HERE for DETAILED PHOTOS
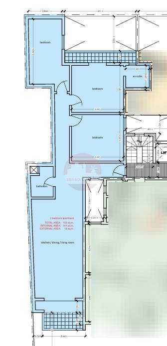
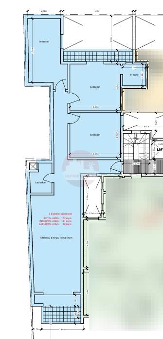
Birkirkara - 3 Bedroom Apartment Circa 153sqm - On Plan - Finished
3+ bedroom apartment for sale • Birkirkara
New Development - First Floor Level 3 Bedroom Apartment located in a prime area of Birkirkara. Presently being offered on plan, construction estimated to commence end of March 2026, to be sold Finished excl. Bathrooms and Internal Doors.
The Apartment offers a comfortable layout consisting of an open plan Kitchen/Living/Dining area leading to a larger than usual front balcony. There is a main Bathroom and three double Bedrooms. The main bedroom includes an En-suite and has access to a back Balcony.
Freehold
Rooms and Features
Code
V023940
Locality
Birkirkara
Property type
3+ bedroom apartment
Price
369,000 €
Locals
1
Bedrooms
3
Bathrooms
2
Sqm
153
Energetic class
Nondescript
Property Conditions
Next Realization
Photos • Floorplans • Video
Photos
Options
Print Property sheet
Send property sheet by mail
Schedule a visit
RealEstate Brokers
Jenkins Rita
+356 7712 7772
+356 9998 6779
+356 9998 6775
rita@sensaramalta.com
Information request
Name *
Phone *
E-mail *
Request Details *
I authorize the processing of my personal data according Regolamento UE n. 679/2016 -
Privacy Policy
I authorize the processing of data for marketing purposes, promotional activities, commercial offers and market surveys.
Send
Share on
We also recommend
for Sale
Mosta - 175sqm 3 DBL Finished Apartment
512,000 €
for Sale
Zabbar - 3 Bedroom 3rd Floor Finished Apartment On Plan
330,000 €
for Sale
Xaghra Gozo - 3 Bedroom Apartment
256,000 €
Keep default settings X
Use of cookies
This site uses cookies. Our (own) cookies and those of our Partners (third party cookies) are used to offer you a unique experience with us. For this reason, together with our partners, we collect and process non-sensitive information (such as the identifier of your device or the pages you visit).
At any time you can delete, modify or verify the information you share in
Cookie preference
or in our
Cookie Policy
and
Privacy Policy
.
Necessary
Functional
Profiling
Analytics
Accept all
Decline all
Accept selected
Cookie preference