Toggle navigation
(+356) 2164 9500
(+356) 9998 6779
info@sensaramalta.com
Head Office - Sensara Malta
Triq Santa Marija, Safi
09.00 to 19.00 hrs
Monday to Saturday
Home
Properties
Sales
Rentals
Foreign
About us
Services
Contacts
Send your request
Previous
Next
185,000 €
CLICK HERE for DETAILED PHOTOS
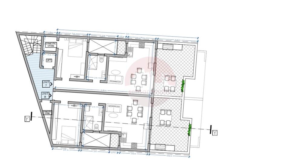
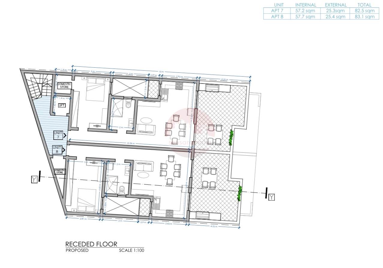
Ghajnsielem Gozo - 1 Bedroom Penthouse + Airspace
Penthouse for sale • Ghajnsielem Gozo
One-Bedroom Penthouse | On Plan | Għajnsielem
An excellent opportunity to acquire a one-bedroom penthouse still on plan, forming part of a small block of just eight units, set in a tranquil area of Għajnsielem, within walking distance of the charming village square.
Located on the fourth floor, this penthouse will be offered in shell form, giving buyers the freedom to finish to their own style. The layout comprises an open-plan kitchen/living/dining area, one bedroom, one bathroom, a domestic store, and a large front terrace, ideal for outdoor dining and entertaining.
✔ Fourth floor
✔ Block of 8 units
✔ Lift & common parts at €5,000
✔ Quiet yet central location close to all amenities
Perfect as a rental investment, first-time purchase, or a cozy Gozo retreat.
Rooms and Features
Code
V023907
Locality
Ghajnsielem Gozo
Property type
Penthouse
Price
185,000 €
Locals
1
Sqm
82.5
Energetic class
Not applicable
Photos • Floorplans • Video
Photos
Options
Print Property sheet
Send property sheet by mail
Schedule a visit
RealEstate Brokers
Xiberras Joanie
+356 9985 2678
+356 9998 6779
+356 9998 6775
joanie.gozo@sensaramalta.com
Information request
Name *
Phone *
E-mail *
Request Details *
I authorize the processing of my personal data according Regolamento UE n. 679/2016 -
Privacy Policy
I authorize the processing of data for marketing purposes, promotional activities, commercial offers and market surveys.
Send
Share on
We also recommend
for Sale
Marsaxlokk - 3 Bedroom Finished Penthouse (On Plan)
635,000 €
for Sale
Zurrieq - 3 Bedroom Finished Ready Built Penthouse
482,000 €
for Sale
Marsa - 2 Bedroom Penthouse Shell Form On Plan
230,000 €
Keep default settings X
Use of cookies
This site uses cookies. Our (own) cookies and those of our Partners (third party cookies) are used to offer you a unique experience with us. For this reason, together with our partners, we collect and process non-sensitive information (such as the identifier of your device or the pages you visit).
At any time you can delete, modify or verify the information you share in
Cookie preference
or in our
Cookie Policy
and
Privacy Policy
.
Necessary
Functional
Profiling
Analytics
Accept all
Decline all
Accept selected
Cookie preference