Toggle navigation
(+356) 2164 9500
(+356) 9998 6779
info@sensaramalta.com
Head Office - Sensara Malta
Triq Santa Marija, Safi
09.00 to 19.00 hrs
Monday to Saturday
Home
Properties
Sales
Rentals
Foreign
About us
Services
Contacts
Send your request
Previous
Next
307,500 €
CLICK HERE for DETAILED PHOTOS
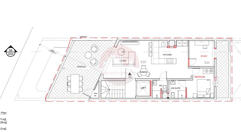
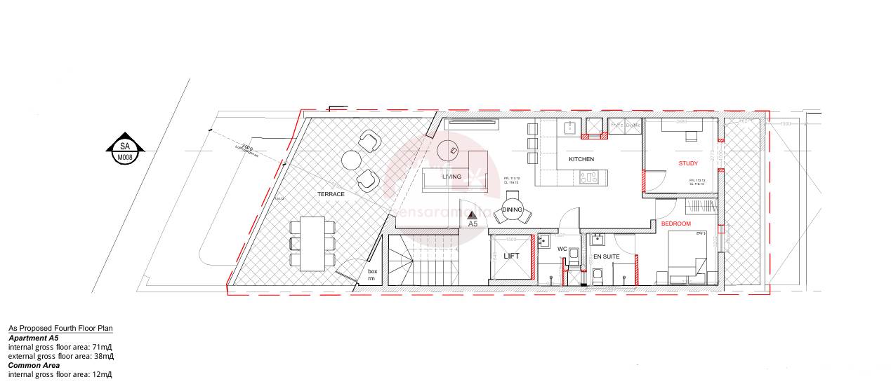
Fgura - On Plan 1 Bedroom + Study Finished Penthouse + Front & Back Terrace
Penthouse for sale • Fgura
On plan, forming part of a small block of just 4 units, comes this 1 bedroom + study penthouse situated on the 4th floor and served with lift. Completion date approx August 2026.
Property consists of an open plan kitchen/living/dining leading to a good size terrace on facade, main bathroom, box room, 1 double bedroom with en-suite, study room and a back drying terrace.
This penthouse is being offered finished excluding bathrooms and doors and with airspace included.
Rooms and Features
Code
V023822
Locality
Fgura
Property type
Penthouse
Price
307,500 €
Locals
1
Bedrooms
2
Bathrooms
2
Sqm
109
Terraces
2
sqm Terrace
38
Energetic class
Nondescript
Property Conditions
New
Photos • Floorplans • Video
Photos
Options
Print Property sheet
Send property sheet by mail
Schedule a visit
RealEstate Brokers
Schembri Josianne
+356 7782 4222
+356 9998 6779
+356 9998 6775
josianne@sensaramalta.com
Information request
Name *
Phone *
E-mail *
Request Details *
I authorize the processing of my personal data according Regolamento UE n. 679/2016 -
Privacy Policy
I authorize the processing of data for marketing purposes, promotional activities, commercial offers and market surveys.
Send
Share on
We also recommend
for Sale
Zabbar - 3 Bedroom Fully Finished Penthouse + Airspace
420,000 €
for Sale
Msida - 2 Bedroom 6th Floor Finished Penthouse On Plan
395,000 €
for Sale
Birzebbugia - Under Construction 2 B/RM Penthouse + Airspace + Views
358,400 €
Keep default settings X
Use of cookies
This site uses cookies. Our (own) cookies and those of our Partners (third party cookies) are used to offer you a unique experience with us. For this reason, together with our partners, we collect and process non-sensitive information (such as the identifier of your device or the pages you visit).
At any time you can delete, modify or verify the information you share in
Cookie preference
or in our
Cookie Policy
and
Privacy Policy
.
Necessary
Functional
Profiling
Analytics
Accept all
Decline all
Accept selected
Cookie preference