Toggle navigation
(+356) 2164 9500
(+356) 9998 6779
info@sensaramalta.com
Head Office - Sensara Malta
Triq Santa Marija, Safi
09.00 to 19.00 hrs
Monday to Saturday
Home
Properties
Sales
Rentals
Foreign
About us
Services
Contacts
Send your request
Previous
Next
353,500 €
CLICK HERE for DETAILED PHOTOS
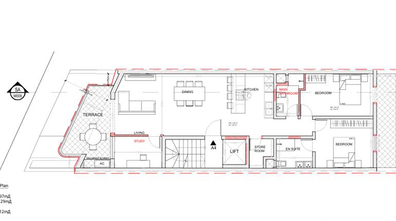
Birkirkara - 3 Bedroom Finished 1st Floor Apartment Under Construction
3+ bedroom apartment for sale • Birkirkara
In Birkirkara comes three-bedroom, First floor apartment, currently under construction.
This apartment consists of an open plan kitchen/dining/living with a front balcony, laundry room, shower room and three double bedrooms, master bedroom includes a balcony a walk-in-wardrobe and an ensuite bathroom, second bedroom also includes an ensuite bathroom.
This apartment is being offered highly finished excluding bathroom and internal doors, estimated to be completed by June 2026.
Rooms and Features
Code
V023768
Locality
Birkirkara
Property type
3+ bedroom apartment
Price
353,500 €
Locals
1
Bedrooms
3
Bathrooms
3
Sqm
120
Balconies
2
Floor
1
Energetic class
Nondescript
Photos • Floorplans • Video
Photos
Options
Print Property sheet
Send property sheet by mail
Schedule a visit
RealEstate Brokers
Kitney Claudia
+356 9940 4319
+356 9998 6779
+356 9998 6775
claudia@sensaramalta.com
Information request
Name *
Phone *
E-mail *
Request Details *
I authorize the processing of my personal data according Regolamento UE n. 679/2016 -
Privacy Policy
I authorize the processing of data for marketing purposes, promotional activities, commercial offers and market surveys.
Send
Share on
We also recommend
for Sale
Qormi - 3 Bedroom Apartment On Plan
300,000 €
for Sale
Xemxija - 130sqm 3 Double Bedroom Fully Furnished Apartment + Optional Garage
375,000 €
for Sale
Iklin - Already Built 3 Bedroom Fully Finished Apartment at 1st Floor + Terrace + Optional Garage
396,000 €
Keep default settings X
Use of cookies
This site uses cookies. Our (own) cookies and those of our Partners (third party cookies) are used to offer you a unique experience with us. For this reason, together with our partners, we collect and process non-sensitive information (such as the identifier of your device or the pages you visit).
At any time you can delete, modify or verify the information you share in
Cookie preference
or in our
Cookie Policy
and
Privacy Policy
.
Necessary
Functional
Profiling
Analytics
Accept all
Decline all
Accept selected
Cookie preference