Toggle navigation
(+356) 2164 9500
(+356) 9998 6779
info@sensaramalta.com
Head Office - Sensara Malta
Triq Santa Marija, Safi
09.00 to 19.00 hrs
Monday to Saturday
Home
Properties
Sales
Rentals
Foreign
About us
Services
Contacts
Send your request
Previous
Next
330,000 €
CLICK HERE for DETAILED PHOTOS
Zabbar - 2 Bedroom Elevated GF Maisonette - On Plan - Finished
Maisonette for sale • Zabbar
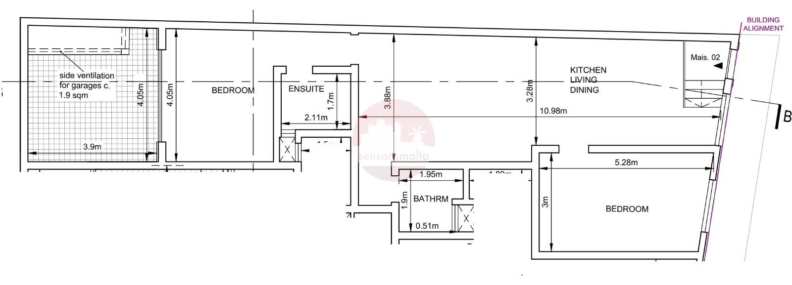
An Elevated Ground Floor Maisonette with a private main entrance and a backyard, located in Zabbar. Currently on Plan - to be sold Finished excluding Bathrooms and Internal Doors. Estimated to be completed by September 2026.
Layout consisting of a Kitchen/Living/Dining, Main Bathroom, 2 Bedrooms, of which the Main Bedroom is served with an en-suite and a Backyard.
Optional Jacuzzi and one car garage semi-basement for an additional price.
Freehold
Rooms and Features
Code
V023600
Locality
Zabbar
Property type
Maisonette
Price
330,000 €
Locals
1
Bedrooms
2
Bathrooms
2
Sqm
89
Energetic class
Nondescript
Photos • Floorplans • Video
Photos
Options
Print Property sheet
Send property sheet by mail
Schedule a visit
RealEstate Brokers
Jenkins Rita
+356 7712 7772
+356 9998 6779
+356 9998 6775
rita@sensaramalta.com
Information request
Name *
Phone *
E-mail *
Request Details *
I authorize the processing of my personal data according Regolamento UE n. 679/2016 -
Privacy Policy
I authorize the processing of data for marketing purposes, promotional activities, commercial offers and market surveys.
Send
Share on
We also recommend
for Sale
Mosta - 3 Bedroom Finished Elevated Maisonette + Terrace
520,000 €
for Sale
Balzan - 1 Bedroom Ground Floor Maisonette + Garage
307,000 €
for Sale
Msida - 3 Bedroom Ground Floor Maisonette, Shell, On Plan
327,500 €
Keep default settings X
Use of cookies
This site uses cookies. Our (own) cookies and those of our Partners (third party cookies) are used to offer you a unique experience with us. For this reason, together with our partners, we collect and process non-sensitive information (such as the identifier of your device or the pages you visit).
At any time you can delete, modify or verify the information you share in
Cookie preference
or in our
Cookie Policy
and
Privacy Policy
.
Necessary
Functional
Profiling
Analytics
Accept all
Decline all
Accept selected
Cookie preference