Toggle navigation
(+356) 2164 9500
(+356) 9998 6779
info@sensaramalta.com
Head Office - Sensara Malta
Triq Santa Marija, Safi
09.00 to 19.00 hrs
Monday to Saturday
Home
Properties
Sales
Rentals
Foreign
About us
Services
Contacts
Send your request
Previous
Next
502,000 €
CLICK HERE for DETAILED PHOTOS
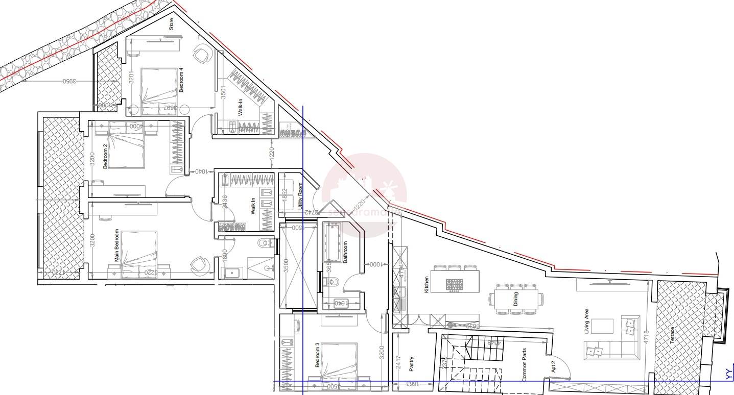
Qrendi - 1st Floor Large 4 Finished Bedroom Apartment
3+ bedroom apartment for sale • Qrendi
Located on the first floor, larger than usual four-bedroom finished apartment currently available on plan .
This apartment has four double bedrooms. The master bedroom includes an ensuite bathroom, and two of the bedrooms have walk-in wardrobes. Three of the bedrooms also have their own balcony, an open plan kitchen/dining/living with a front terrace, a pantry, a main bathroom and a laundry room.
This apartment currently on plan and is estimate to be completed by 2027. It's being offered finished excluding bathrooms and doors.
Optional 2 car garages are available at an extra price starting from 75k.
Rooms and Features
Code
V023556
Locality
Qrendi
Property type
3+ bedroom apartment
Price
502,000 €
Locals
1
Bedrooms
4
Bathrooms
2
Sqm
194
Terraces
3
Floor
1
Energetic class
Nondescript
Photos • Floorplans • Video
Photos
Options
Print Property sheet
Send property sheet by mail
Schedule a visit
RealEstate Brokers
Zahra Gaynor
+356 7933 5643
+356 9998 6775
+356 9998 6779
gaynor@sensaramalta.com
Information request
Name *
Phone *
E-mail *
Request Details *
I authorize the processing of my personal data according Regolamento UE n. 679/2016 -
Privacy Policy
I authorize the processing of data for marketing purposes, promotional activities, commercial offers and market surveys.
Send
Share on
We also recommend
for Sale
Birkirkara - 3 Bedroom Squarish Apartment Circa 116sqm - On Plan - Finished
348,000 €
for Sale
Qormi - 3 Bedroom Apartment On Plan
305,000 €
for Sale
Marsascala - 212sqm 3 Bedroom Fully Finished Apartment + Terrace + Optional Garage
460,000 €
Keep default settings X
Use of cookies
This site uses cookies. Our (own) cookies and those of our Partners (third party cookies) are used to offer you a unique experience with us. For this reason, together with our partners, we collect and process non-sensitive information (such as the identifier of your device or the pages you visit).
At any time you can delete, modify or verify the information you share in
Cookie preference
or in our
Cookie Policy
and
Privacy Policy
.
Necessary
Functional
Profiling
Analytics
Accept all
Decline all
Accept selected
Cookie preference