Toggle navigation
(+356) 2164 9500
(+356) 9998 6779
info@sensaramalta.com
Head Office - Sensara Malta
Triq Santa Marija, Safi
09.00 to 19.00 hrs
Monday to Saturday
Home
Properties
Sales
Rentals
Foreign
About us
Services
Contacts
Send your request
Previous
Next
358,500 €
CLICK HERE for DETAILED PHOTOS
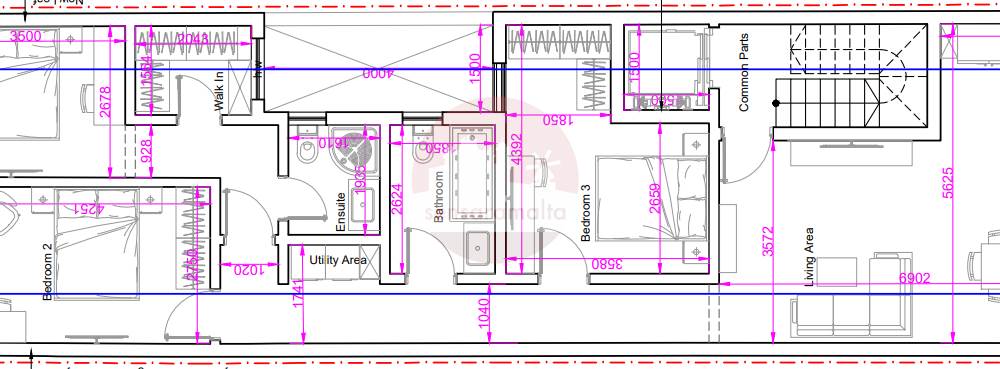
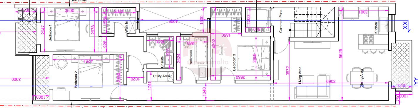
Ghaxaq - 3 Bedroom Finished 3rd Floor Apartment On Plan
3+ bedroom apartment for sale • Ghaxaq
Located in a small block of only 4 units in a quiet are of Ghaxaq. Three-bedroom finished third floor apartment currently available on plan.
Consists of an open plan kitchen/dining/living with a front balcony, main bathroom and three-double bedrooms, master bedroom with ensuite, walk-in-wardrobe and a private balcony.
This apartment is being offered finished excluding bathrooms and doors. Offered on plan and is estimated to be completed by 2027.
Optional garages are available starting from 57k
Rooms and Features
Code
V023550
Locality
Ghaxaq
Property type
3+ bedroom apartment
Price
358,500 €
Locals
1
Bedrooms
3
Bathrooms
2
Sqm
120
Balconies
3
Floor
3
Energetic class
Nondescript
Photos • Floorplans • Video
Photos
Options
Print Property sheet
Send property sheet by mail
Schedule a visit
RealEstate Brokers
Briffa Stephania
+356 7747 9456
+356 9998 6779
+356 9998 6775
stephania@sensaramalta.com
Information request
Name *
Phone *
E-mail *
Request Details *
I authorize the processing of my personal data according Regolamento UE n. 679/2016 -
Privacy Policy
I authorize the processing of data for marketing purposes, promotional activities, commercial offers and market surveys.
Send
Share on
We also recommend
for Sale
Balzan - 3 Bedroom Finished Apartment On Plan
405,000 €
for Sale
St Paul's Bay - 3 Bedroom 4th Floor Fully Furnished Apartment with Front Terrace and Back balcony
461,000 €
for Sale
Santa Lucia Gozo - 3 Bedroom Penthouse + Views
465,000 €
Keep default settings X
Use of cookies
This site uses cookies. Our (own) cookies and those of our Partners (third party cookies) are used to offer you a unique experience with us. For this reason, together with our partners, we collect and process non-sensitive information (such as the identifier of your device or the pages you visit).
At any time you can delete, modify or verify the information you share in
Cookie preference
or in our
Cookie Policy
and
Privacy Policy
.
Necessary
Functional
Profiling
Analytics
Accept all
Decline all
Accept selected
Cookie preference