Toggle navigation
(+356) 2164 9500
(+356) 9998 6779
info@sensaramalta.com
Head Office - Sensara Malta
Triq Santa Marija, Safi
09.00 to 19.00 hrs
Monday to Saturday
Home
Properties
Sales
Rentals
Foreign
About us
Services
Contacts
Send your request
Previous
Next
480,000 €
CLICK HERE for DETAILED PHOTOS
Marsascala - 3 Bedroom Fully Furnished Apartment + Optional Garage
3+ bedroom apartment for sale • Marsascala
A Beautiful 3 Bedroom Apartment situated in one of the most Luxurious Complexes in the South named 'Ta' Monita'.
Enjoying a Communal Pool , garden and discounted Gym Services. This Property is being offered highly finished and fully furnished.
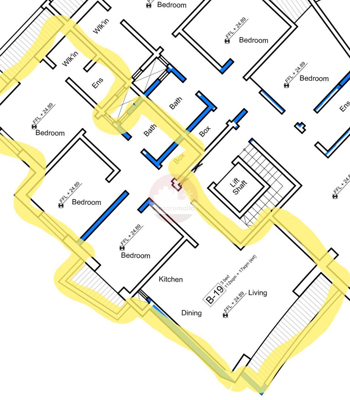
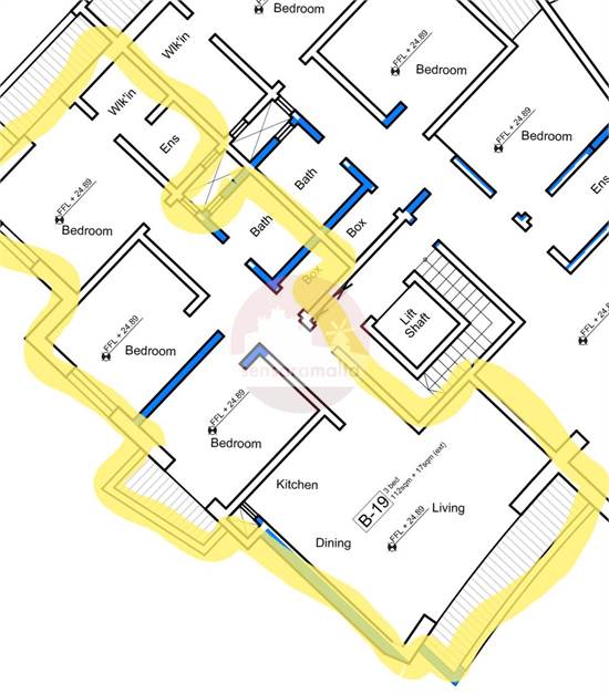
This Second floor Apartment enjoying comprises of an open plan Kitchen/Living/Dining overlooking a front balcony, a corridor leading to a laundry/box room, main bathroom, three bedrooms of which the main bedroom is served with an en-suite and walk in and back balconies.
An Optional Interconnected 1 Car Garage is also available for €55,000
Freehold
Rooms and Features
Code
V023539
Locality
Marsascala
Property type
3+ bedroom apartment
Price
480,000 €
Locals
1
Bedrooms
3
Bathrooms
2
Sqm
130
Garages
1
Balconies
3
Floor
2
Energetic class
Nondescript
Photos • Floorplans • Video
Photos
Options
Print Property sheet
Send property sheet by mail
Schedule a visit
RealEstate Brokers
Cortis Marika
+356 9925 6579
+356 9998 6779
+356 9998 6775
cortis@sensaramalta.com
Information request
Name *
Phone *
E-mail *
Request Details *
I authorize the processing of my personal data according Regolamento UE n. 679/2016 -
Privacy Policy
I authorize the processing of data for marketing purposes, promotional activities, commercial offers and market surveys.
Send
Share on
We also recommend
for Sale
Zurrieq - Second Floor 3 Bedroom Finished Apartment On Plan
450,500 €
for Sale
Birkirkara - 3 Bedroom Squarish Apartment Circa 116sqm - On Plan - Finished
348,000 €
for Sale
Victoria Gozo - 3 Bedroom Apartments / 2 Bedroom Penthouses
250,000 €
Keep default settings X
Use of cookies
This site uses cookies. Our (own) cookies and those of our Partners (third party cookies) are used to offer you a unique experience with us. For this reason, together with our partners, we collect and process non-sensitive information (such as the identifier of your device or the pages you visit).
At any time you can delete, modify or verify the information you share in
Cookie preference
or in our
Cookie Policy
and
Privacy Policy
.
Necessary
Functional
Profiling
Analytics
Accept all
Decline all
Accept selected
Cookie preference