Toggle navigation
(+356) 2164 9500
(+356) 9998 6779
info@sensaramalta.com
Head Office - Sensara Malta
Triq Santa Marija, Safi
09.00 to 19.00 hrs
Monday to Saturday
Home
Properties
Sales
Rentals
Foreign
About us
Services
Contacts
Send your request
Previous
Next
275,000 €
CLICK HERE for DETAILED PHOTOS
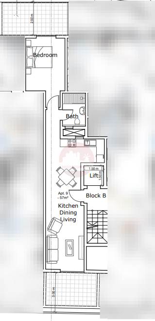
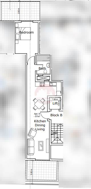
St Venera - 1 Bedroom Ready Built Finished Penthouse
Penthouse for sale • Santa Venera
In St Venera comes this finished 4th floor 1 bedroom Penthouse (circa 79sqm). Served with lift.
The layout includes an open-plan kitchen/dining/living area, main bathroom and a master bedroom. This Penthouse also includes a spacious front and back terrace, making it ideal for entertaining.
Property is to be sold finished excluding bathrooms and internal doors.
Completion date for the project is March 2026.
Optional 1 or 2 car garages available starting from 45K.
Freehold
Rooms and Features
Code
V023496
Locality
Santa Venera
Property type
Penthouse
Price
275,000 €
Locals
1
Bedrooms
1
Bathrooms
1
Sqm
79
Balconies
2
Floor
4
Energetic class
Nondescript
Photos • Floorplans • Video
Photos
Options
Print Property sheet
Send property sheet by mail
Schedule a visit
RealEstate Brokers
Dimech Miriam
+356 7904 6848
+356 9998 6779
+356 9998 6775
miriamd@sensaramalta.com
Information request
Name *
Phone *
E-mail *
Request Details *
I authorize the processing of my personal data according Regolamento UE n. 679/2016 -
Privacy Policy
I authorize the processing of data for marketing purposes, promotional activities, commercial offers and market surveys.
Send
Share on
We also recommend
for Sale
Zebbug - 2 Bed Fully Finished Penthouse On Plan
470,000 €
for Sale
Birzebbugia - 2 Bedroom Penthouse + Airspace
298,000 €
for Sale
Birkirkara - 3 Bedroom Finished Penthouse With Pool+Airspace Ready Built
558,000 €
Keep default settings X
Use of cookies
This site uses cookies. Our (own) cookies and those of our Partners (third party cookies) are used to offer you a unique experience with us. For this reason, together with our partners, we collect and process non-sensitive information (such as the identifier of your device or the pages you visit).
At any time you can delete, modify or verify the information you share in
Cookie preference
or in our
Cookie Policy
and
Privacy Policy
.
Necessary
Functional
Profiling
Analytics
Accept all
Decline all
Accept selected
Cookie preference