Toggle navigation
(+356) 2164 9500
(+356) 9998 6779
info@sensaramalta.com
Head Office - Sensara Malta
Triq Santa Marija, Safi
09.00 to 19.00 hrs
Monday to Saturday
Home
Properties
Sales
Rentals
Foreign
About us
Services
Contacts
Send your request
Previous
Next
266,500 €
CLICK HERE for DETAILED PHOTOS
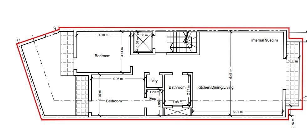
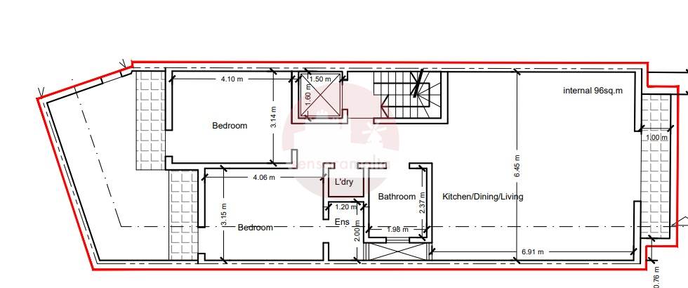
Fgura - 1st Floor 2 Bedroom Fully Finished Apartment
2 bedroom apartment for sale • Fgura
Located in a small block of only 4 units (one unit per floor), currently available on plan ( Demolishing is schedule to start January 2026 ). Features a great layout with well-designed spaces.
Comprises of an open plan kitchen/dining/living with a front balcony, main bathroom, a laundry room, two double bedrooms both with a private balcony and the master also includes an ensuite.
This apartment is being offered fully finished including bathrooms and doors. Estimate to be completed by the end of 2026.
Rooms and Features
Code
V023377
Locality
Fgura
Property type
2 bedroom apartment
Price
266,500 €
Locals
1
Bedrooms
2
Bathrooms
2
Sqm
96
Balconies
3
Floor
1
Energetic class
Nondescript
Photos • Floorplans • Video
Photos
Options
Print Property sheet
Send property sheet by mail
Schedule a visit
RealEstate Brokers
Schembri Maria Pawla
+356 7732 8183
+356 9998 6779
+356 9998 6775
pawla@sensaramalta.com
Information request
Name *
Phone *
E-mail *
Request Details *
I authorize the processing of my personal data according Regolamento UE n. 679/2016 -
Privacy Policy
I authorize the processing of data for marketing purposes, promotional activities, commercial offers and market surveys.
Send
Share on
We also recommend
for Sale
Xlendi Gozo - 2 Bedroom Furnished Apartment
292,000 €
for Sale
Gudja - 2 Bedroom Finished 2nd Floor Apartment On Plan
315,000 €
for Sale
Gzira - 3rd Floor 2 Bedroom Fully Finished Apartment Ready Built
353,000 €
Keep default settings X
Use of cookies
This site uses cookies. Our (own) cookies and those of our Partners (third party cookies) are used to offer you a unique experience with us. For this reason, together with our partners, we collect and process non-sensitive information (such as the identifier of your device or the pages you visit).
At any time you can delete, modify or verify the information you share in
Cookie preference
or in our
Cookie Policy
and
Privacy Policy
.
Necessary
Functional
Profiling
Analytics
Accept all
Decline all
Accept selected
Cookie preference