Toggle navigation
(+356) 2164 9500
(+356) 9998 6779
info@sensaramalta.com
Head Office - Sensara Malta
Triq Santa Marija, Safi
09.00 to 19.00 hrs
Monday to Saturday
Home
Properties
Sales
Rentals
Foreign
About us
Services
Contacts
Send your request
Previous
Next
450,000 €
CLICK HERE for DETAILED PHOTOS
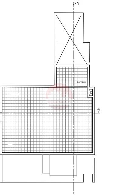
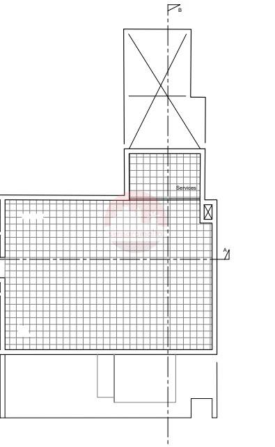
Mosta - 2 Bedroom Finished Penthouse On Plan + Pool + Roof
Penthouse for sale • Mosta
A two-bedroom finished penthouse currently available on plan in Mosta.
The property features an open-plan kitchen/dining/living area leading to a front terrace with a pool, and two double bedrooms — the master bedroom includes an ensuite, while the second bedroom enjoys its own private terrace. This property also includes full ownership of the roof and airspace.
The penthouse is being offered finished, excluding bathrooms and internal doors, with completion estimated for mid-2026.
Optional garages are available at an extra price.
Rooms and Features
Code
V023309
Locality
Mosta
Property type
Penthouse
Price
450,000 €
Locals
1
Bedrooms
2
Bathrooms
2
Sqm
125
Terraces
1
Energetic class
Nondescript
Photos • Floorplans • Video
Photos
Options
Print Property sheet
Send property sheet by mail
Schedule a visit
RealEstate Brokers
Kitney Claudia
+356 9940 4319
+356 9998 6779
+356 9998 6775
claudia@sensaramalta.com
Information request
Name *
Phone *
E-mail *
Request Details *
I authorize the processing of my personal data according Regolamento UE n. 679/2016 -
Privacy Policy
I authorize the processing of data for marketing purposes, promotional activities, commercial offers and market surveys.
Send
Share on
We also recommend
for Sale
Zurrieq - 2 Bedroom Penthouse + Pool + On Plan
624,500 €
for Sale
Gozo Xewkija: Two bedroom PENTHOUSE
285,000 €
for Sale
Zebbug - 3 Bedroom Penthouse + Full Airspace + Optional Garage
461,000 €
Keep default settings X
Use of cookies
This site uses cookies. Our (own) cookies and those of our Partners (third party cookies) are used to offer you a unique experience with us. For this reason, together with our partners, we collect and process non-sensitive information (such as the identifier of your device or the pages you visit).
At any time you can delete, modify or verify the information you share in
Cookie preference
or in our
Cookie Policy
and
Privacy Policy
.
Necessary
Functional
Profiling
Analytics
Accept all
Decline all
Accept selected
Cookie preference