Toggle navigation
(+356) 2164 9500
(+356) 9998 6779
info@sensaramalta.com
Head Office - Sensara Malta
Triq Santa Marija, Safi
09.00 to 19.00 hrs
Monday to Saturday
Home
Properties
Sales
Rentals
Foreign
About us
Services
Contacts
Send your request
Previous
Next
261,000 €
CLICK HERE for DETAILED PHOTOS
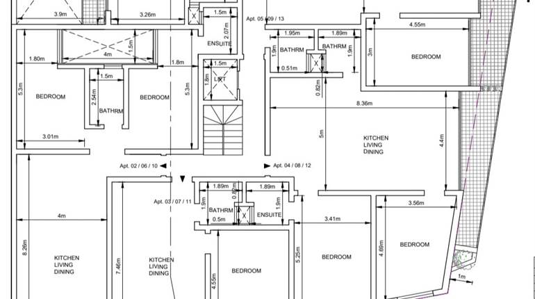
Marsascala - Squarish Layout 2nd Floor 2 Bedroom Apartment
2 bedroom apartment for sale • Marsascala
π New on the Market β Attractive Investment Opportunity! π
A beautifully designed second floor apartment forming part of an exclusive block of just 11 units. Boasting a squarish layout and measuring a generous 83 sqm internal and a 7sqm front terrace, this property will be sold fully finished (excluding bathrooms and internal doors) and is set for completion by mid-2027.
The layout offers a bright open-plan kitchen/living/dining area, two comfortable bedrooms, and two bathrooms β including a master bedroom with en suite.
With its modern design, and it's attractive prices, this apartment is the perfect choice for a stylish new home or a smart buy-to-let investment.
Basement and street level garages are available at an extra cost.
Note: Marked blue on plan
Rooms and Features
Code
V023078
Locality
Marsascala
Property type
2 bedroom apartment
Price
261,000 €
Locals
1
Sqm
90
Floor
2
Energetic class
Nondescript
Photos • Floorplans • Video
Photos
Options
Print Property sheet
Send property sheet by mail
Schedule a visit
RealEstate Brokers
Briffa Stephania
+356 7747 9456
+356 9998 6779
+356 9998 6775
stephania@sensaramalta.com
Information request
Name *
Phone *
E-mail *
Request Details *
I authorize the processing of my personal data according Regolamento UE n. 679/2016 -
Privacy Policy
I authorize the processing of data for marketing purposes, promotional activities, commercial offers and market surveys.
Send
Share on
We also recommend
for Sale
Zabbar- Third floor 2 bedroom apartment fully finished
270,000 €
for Sale
Nadur Gozo - 2 Bedroom Maisonette
270,000 €
for Sale
Zejtun - Duplex 2 Bedroom Apartment / Finished
330,000 €
Keep default settings X
Use of cookies
This site uses cookies. Our (own) cookies and those of our Partners (third party cookies) are used to offer you a unique experience with us. For this reason, together with our partners, we collect and process non-sensitive information (such as the identifier of your device or the pages you visit).
At any time you can delete, modify or verify the information you share in
Cookie preference
or in our
Cookie Policy
and
Privacy Policy
.
Necessary
Functional
Profiling
Analytics
Accept all
Decline all
Accept selected
Cookie preference