Toggle navigation
(+356) 2164 9500
(+356) 9998 6779
info@sensaramalta.com
Head Office - Sensara Malta
Triq Santa Marija, Safi
09.00 to 19.00 hrs
Monday to Saturday
Home
Properties
Sales
Rentals
Foreign
About us
Services
Contacts
Send your request
Previous
Next
370,000 €
CLICK HERE for DETAILED PHOTOS
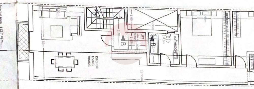
Attard - 3 bedroom Furnished Apartment
3+ bedroom apartment for sale • Attard
In a prime location, comes this 3 bedroom apartment in Attard which is being sold furnished.
Close to all amenities yet in a quiet area, this apartment is set on the first floor accessible by a flight of stairs. Comprising of an open plan KLD with a front balcony and a very useful box room, a wide corridor leads to the main bathroom, main bedroom and to the two other double bedrooms at the back.
Must be seen to appreciate its spacious layout ensuring a practical and comfortable lifestyle.
Freehold
Rooms and Features
Code
V022872
Locality
Attard
Property type
3+ bedroom apartment
Price
370,000 €
Locals
1
Bathrooms
1
Sqm
116
Balconies
1
Energetic class
Not applicable
Photos • Floorplans • Video
Photos
Options
Print Property sheet
Send property sheet by mail
Schedule a visit
RealEstate Brokers
Aguis Lorna
+356 9961 6121
+356 9998 6779
+356 2164 9500
lorna@sensaramalta.com
Information request
Name *
Phone *
E-mail *
Request Details *
I authorize the processing of my personal data according Regolamento UE n. 679/2016 -
Privacy Policy
I authorize the processing of data for marketing purposes, promotional activities, commercial offers and market surveys.
Send
Share on
We also recommend
for Sale
St.Julian's - 3 Bedroom Apartment Luxury Finished
430,000 €
for Sale
Safi, Under Construction - 2nd Floor, 3 Bedroom Finished Apartment
355,000 €
for Sale
Zebbiegh - Ground Floor 3 Double Bedroom Ground Floor Apartment
750,000 €
Keep default settings X
Use of cookies
This site uses cookies. Our (own) cookies and those of our Partners (third party cookies) are used to offer you a unique experience with us. For this reason, together with our partners, we collect and process non-sensitive information (such as the identifier of your device or the pages you visit).
At any time you can delete, modify or verify the information you share in
Cookie preference
or in our
Cookie Policy
and
Privacy Policy
.
Necessary
Functional
Profiling
Analytics
Accept all
Decline all
Accept selected
Cookie preference