Toggle navigation
(+356) 2164 9500
(+356) 9998 6779
info@sensaramalta.com
Head Office - Sensara Malta
Triq Santa Marija, Safi
09.00 to 19.00 hrs
Monday to Saturday
Home
Properties
Sales
Rentals
Foreign
About us
Services
Contacts
Send your request
Previous
Next
305,000 €
CLICK HERE for DETAILED PHOTOS
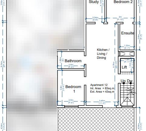
Tarxien, currently under construction,2 bedroom 4th floor Penthouse + 2 Terrace
Penthouse for sale • Tarxien
In Tarxien comes this new residential block, which consists of a ground-floor maisonnette, 6 apartments, and 2 penthouses. Each unit will be offered finished, excluding bathrooms and internal doors, and it is planned to be completed by June 2026 .
This 4th floor penthouse consists of a front square living, dining room with a combined kitchen overlooking a front terrace , a master bathroom, double bedrooms served with a balcony and an en-suite and a study room served with back terrace.
On the top floor, one will find full roof and airspace.
Freehold.
Rooms and Features
Code
V022825
Locality
Tarxien
Property type
Penthouse
Price
305,000 €
Locals
1
Bedrooms
2
Bathrooms
2
Sqm
80
Terraces
2
Floor
4
Energetic class
Not applicable
Property Conditions
Under Construction
Photos • Floorplans • Video
Photos
Options
Print Property sheet
Send property sheet by mail
Schedule a visit
RealEstate Brokers
Schembri Maria Pawla
+356 7732 8183
+356 9998 6779
+356 9998 6775
pawla@sensaramalta.com
Information request
Name *
Phone *
E-mail *
Request Details *
I authorize the processing of my personal data according Regolamento UE n. 679/2016 -
Privacy Policy
I authorize the processing of data for marketing purposes, promotional activities, commercial offers and market surveys.
Send
Share on
We also recommend
for Sale
Marsalforn - 1 Bedroom Penthouse On Plan
205,000 €
for Sale
Rabat - 3 Bedroom Finished Luxurious Penthouse + Pool + Terrace + Views
2,200,000 €
for Sale
Pieta Fully Finished Top floor 1 Bedroom Penthouse including airspace + Optional Garage
265,000 €
Keep default settings X
Use of cookies
This site uses cookies. Our (own) cookies and those of our Partners (third party cookies) are used to offer you a unique experience with us. For this reason, together with our partners, we collect and process non-sensitive information (such as the identifier of your device or the pages you visit).
At any time you can delete, modify or verify the information you share in
Cookie preference
or in our
Cookie Policy
and
Privacy Policy
.
Necessary
Functional
Profiling
Analytics
Accept all
Decline all
Accept selected
Cookie preference