Toggle navigation
(+356) 2164 9500
(+356) 9998 6779
info@sensaramalta.com
Head Office - Sensara Malta
Triq Santa Marija, Safi
09.00 to 19.00 hrs
Monday to Saturday
Home
Properties
Sales
Rentals
Foreign
About us
Services
Contacts
Send your request
Previous
Next
340,000 €
CLICK HERE for DETAILED PHOTOS
Balzan - Finished 2 Bedroom Penthouse On Plan
Penthouse for sale • Balzan
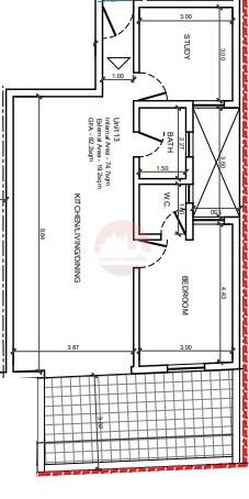
Located in Balzan comes this fouth floor finished Penthouse on plan and is estimate to be completed by Mid-2027.
Consists of an open plan kitchen/dining/living with a front terrace, main bathroom, two double bedrooms and a box room, served with a lift and offered finished excluding bathrooms and doors.
Ideal for first time buyers or as a rental investment.
Optional interconnected garages are available at an extra price.
Rooms and Features
Code
V022696
Locality
Balzan
Property type
Penthouse
Price
340,000 €
Locals
1
Bedrooms
2
Bathrooms
2
Sqm
82
Terraces
1
Floor
4
Energetic class
Nondescript
Photos • Floorplans • Video
Photos
Options
Print Property sheet
Send property sheet by mail
Schedule a visit
RealEstate Brokers
Schembri Maria Pawla
+356 7732 8183
+356 9998 6779
+356 9998 6775
pawla@sensaramalta.com
Information request
Name *
Phone *
E-mail *
Request Details *
I authorize the processing of my personal data according Regolamento UE n. 679/2016 -
Privacy Policy
I authorize the processing of data for marketing purposes, promotional activities, commercial offers and market surveys.
Send
Share on
We also recommend
for Sale
Mosta - 2 Bedroom Finished Penthouse On Plan
497,000 €
for Sale
Marsalforn Gozo - 2 Bedroom Shell Form Penthouse + ODZ Views
260,000 €
for Sale
Mqabba - 3 Bedroom Finished Penthouse On Plan
635,000 €
Keep default settings X
Use of cookies
This site uses cookies. Our (own) cookies and those of our Partners (third party cookies) are used to offer you a unique experience with us. For this reason, together with our partners, we collect and process non-sensitive information (such as the identifier of your device or the pages you visit).
At any time you can delete, modify or verify the information you share in
Cookie preference
or in our
Cookie Policy
and
Privacy Policy
.
Necessary
Functional
Profiling
Analytics
Accept all
Decline all
Accept selected
Cookie preference