Toggle navigation
(+356) 2164 9500
(+356) 9998 6779
info@sensaramalta.com
Head Office - Sensara Malta
Triq Santa Marija, Safi
09.00 to 19.00 hrs
Monday to Saturday
Home
Properties
Sales
Rentals
Foreign
About us
Services
Contacts
Send your request
Previous
Next
385,000 €
CLICK HERE for DETAILED PHOTOS
Zabbar - 3 Bedroom Fully Finished Penthouse
Penthouse for sale • Zabbar
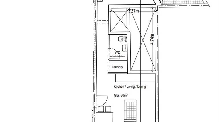
This Penthouse lies in a central part of Zabbar. It consists of an open plan K/L/D, one bathroom and three bedrooms (one with ensuite). It is offered fully finished including bathrooms and doors. It has its own airspace. Optional Garages are available starting from Euros 64.000.. This project is set to be finished by the end of 2025.
Rooms and Features
Code
V022412
Locality
Zabbar
Property type
Penthouse
Price
385,000 €
Locals
1
Bedrooms
3
Bathrooms
2
Sqm
144
Terraces
1
Energetic class
Nondescript
Photos • Floorplans • Video
Photos
Options
Print Property sheet
Send property sheet by mail
Schedule a visit
RealEstate Brokers
Caruana Dylan
+356 9960 6829
+356 9998 6779
+356 2164 9500
dylan@sensaramalta.com
Information request
Name *
Phone *
E-mail *
Request Details *
I authorize the processing of my personal data according Regolamento UE n. 679/2016 -
Privacy Policy
I authorize the processing of data for marketing purposes, promotional activities, commercial offers and market surveys.
Send
Share on
We also recommend
for Sale
Mgarr - 153 sqm Finished 3 Bedroom Penthouse + Optional Garage
594,000 €
for Sale
San Gwann - 1 Bedroom Penthouse On Plan + Outdoor Area
292,000 €
for Sale
Mosta - Highly Finished Penthouse + Views
435,000 €
Keep default settings X
Use of cookies
This site uses cookies. Our (own) cookies and those of our Partners (third party cookies) are used to offer you a unique experience with us. For this reason, together with our partners, we collect and process non-sensitive information (such as the identifier of your device or the pages you visit).
At any time you can delete, modify or verify the information you share in
Cookie preference
or in our
Cookie Policy
and
Privacy Policy
.
Necessary
Functional
Profiling
Analytics
Accept all
Decline all
Accept selected
Cookie preference