Toggle navigation
(+356) 2164 9500
(+356) 9998 6779
info@sensaramalta.com
Head Office - Sensara Malta
Triq Santa Marija, Safi
09.00 to 19.00 hrs
Monday to Saturday
Home
Properties
Sales
Rentals
Foreign
About us
Services
Contacts
Send your request
Previous
Next
285,000 €
CLICK HERE for DETAILED PHOTOS
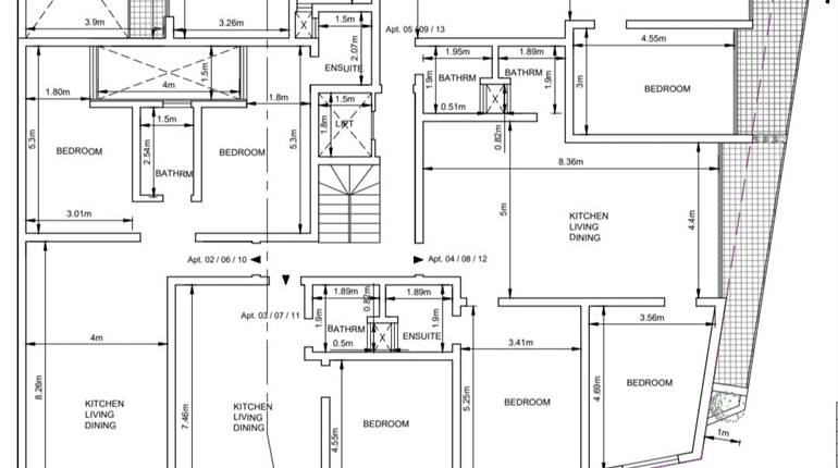
Zabbar - 2 Bedroom 2nd Floor Fully Finished Apartment
2 bedroom apartment for sale • Zabbar
This apartment lies in a central part of Zabbar. It consists of an open plan K/L/D, two bathrooms and two bedrooms (one with ensuite). It is offered fully finished including bathrooms and doors. Optional Garages are available starting from 64.000 Euros. This project is set to be finished by the end of 2025.
Rooms and Features
Code
V022409
Locality
Zabbar
Property type
2 bedroom apartment
Price
285,000 €
Locals
1
Bedrooms
2
Bathrooms
2
Sqm
90
Balconies
1
Floor
2
Energetic class
Nondescript
Photos • Floorplans • Video
Photos
Options
Print Property sheet
Send property sheet by mail
Schedule a visit
RealEstate Brokers
Caruana Dylan
+356 9960 6829
+356 9998 6779
+356 2164 9500
dylan@sensaramalta.com
Information request
Name *
Phone *
E-mail *
Request Details *
I authorize the processing of my personal data according Regolamento UE n. 679/2016 -
Privacy Policy
I authorize the processing of data for marketing purposes, promotional activities, commercial offers and market surveys.
Send
Share on
We also recommend
for Sale
St Pauls Bay - 2 Bedroom Apartment Highly Finished
358,500 €
for Sale
Zabbar - Third floor 2 bedroom apartment fully finished
279,500 €
for Sale
Kercem Gozo - 3 Bedroom Elavted Ground Floor Apt
234,000 €
Keep default settings X
Use of cookies
This site uses cookies. Our (own) cookies and those of our Partners (third party cookies) are used to offer you a unique experience with us. For this reason, together with our partners, we collect and process non-sensitive information (such as the identifier of your device or the pages you visit).
At any time you can delete, modify or verify the information you share in
Cookie preference
or in our
Cookie Policy
and
Privacy Policy
.
Necessary
Functional
Profiling
Analytics
Accept all
Decline all
Accept selected
Cookie preference