Toggle navigation
(+356) 2164 9500
(+356) 9998 6779
info@sensaramalta.com
Head Office - Sensara Malta
Triq Santa Marija, Safi
09.00 to 19.00 hrs
Monday to Saturday
Home
Properties
Sales
Rentals
Foreign
About us
Services
Contacts
Send your request
Previous
Next
450,000 €
CLICK HERE for DETAILED PHOTOS
Zebbiegh - 3 Double Bedroom Ground Floor Apt
3+ bedroom apartment for sale • Zebbiegh
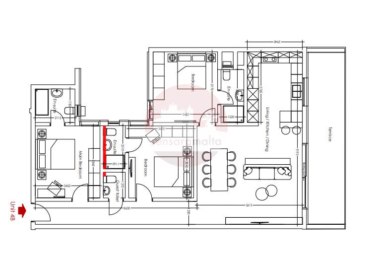
This brand new development Facing an ODZ area lies at the outskirts of the small village of Zebbiegh. This 3 double bedrooms Ground Floor Apartment enjoys a front garden and an internal yard. All the three bedrooms enjoy an ensuite and the kitchen is situated at the front overlooking the front garden. This property will be fully finished (including bathrooms and doors) to high standards. The project is set to be completed by the end of 2025. A choice of interconnected car spaces and optional garages are available at basement levels starting from Euros 33,000.
Rooms and Features
Code
V022286
Locality
Zebbiegh
Property type
3+ bedroom apartment
Price
450,000 €
Locals
1
Bedrooms
3
Bathrooms
4
Sqm
138
Terraces
1
Floor
Ground floor
Energetic class
Nondescript
Photos • Floorplans • Video
Photos
Options
Print Property sheet
Send property sheet by mail
Schedule a visit
RealEstate Brokers
Caruana Dylan
+356 9960 6829
+356 9998 6779
+356 2164 9500
dylan@sensaramalta.com
Information request
Name *
Phone *
E-mail *
Request Details *
I authorize the processing of my personal data according Regolamento UE n. 679/2016 -
Privacy Policy
I authorize the processing of data for marketing purposes, promotional activities, commercial offers and market surveys.
Send
Share on
We also recommend
for Sale
Mosta - 3 Bedroom Finished Ground Floor Apt + Pool
430,000 €
for Sale
Fgura - 3 Bedroom First Floor Finished Apartment Ready Built
295,000 €
for Sale
Nadur Gozo - 3 Bedroom Partly Finished Apartment + Communal Pool + Recreational Land
360,000 €
Keep default settings X
Use of cookies
This site uses cookies. Our (own) cookies and those of our Partners (third party cookies) are used to offer you a unique experience with us. For this reason, together with our partners, we collect and process non-sensitive information (such as the identifier of your device or the pages you visit).
At any time you can delete, modify or verify the information you share in
Cookie preference
or in our
Cookie Policy
and
Privacy Policy
.
Necessary
Functional
Profiling
Analytics
Accept all
Decline all
Accept selected
Cookie preference