Toggle navigation
(+356) 2164 9500
(+356) 9998 6779
info@sensaramalta.com
Head Office - Sensara Malta
Triq Santa Marija, Safi
09.00 to 19.00 hrs
Monday to Saturday
Home
Properties
Sales
Rentals
Foreign
About us
Services
Contacts
Send your request
Previous
Next
333,585 €
CLICK HERE for DETAILED PHOTOS
Marsaxlokk - 2nd Floor 2 Bedroom Finished Apartment
2 bedroom apartment for sale • Marsaxlokk
Further Discount For Sensara Malta Clients!!
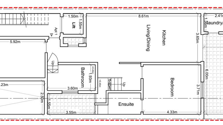
Located in the charming village of Marsaxlokk, this two-bedroom apartment currently under construction features a squarish and practical layout.
Upon entering, you're welcomed into a bright open plan kitchen/dining/living that leads to a front terrace, main bathroom, a laundry room a balcony and two well sized bedrooms with the master having an ensuite.
This apartment is being offered finished, excluding bathrooms and internal doors.
Rooms and Features
Code
V022265
Locality
Marsaxlokk
Property type
2 bedroom apartment
Price
333,585 €
Locals
1
Bedrooms
2
Bathrooms
2
Sqm
123
Floor
2
Energetic class
Nondescript
Photos • Floorplans • Video
Photos
Options
Print Property sheet
Send property sheet by mail
Schedule a visit
RealEstate Brokers
Schembri Maria Pawla
+356 7732 8183
+356 9998 6779
+356 9998 6775
pawla@sensaramalta.com
Information request
Name *
Phone *
E-mail *
Request Details *
I authorize the processing of my personal data according Regolamento UE n. 679/2016 -
Privacy Policy
I authorize the processing of data for marketing purposes, promotional activities, commercial offers and market surveys.
Send
Share on
We also recommend
for Sale
Paola - 2 Bedroom Shell Form Apartment On Plan
172,000 €
for Sale
Hal-Safi - 2 Bed Finished First Floor Apt On Plan
287,000 €
for Sale
Qala Gozo - 2 Bdr Furnished Apt + Communal Pool
359,000 €
Keep default settings X
Use of cookies
This site uses cookies. Our (own) cookies and those of our Partners (third party cookies) are used to offer you a unique experience with us. For this reason, together with our partners, we collect and process non-sensitive information (such as the identifier of your device or the pages you visit).
At any time you can delete, modify or verify the information you share in
Cookie preference
or in our
Cookie Policy
and
Privacy Policy
.
Necessary
Functional
Profiling
Analytics
Accept all
Decline all
Accept selected
Cookie preference