Toggle navigation
(+356) 2164 9500
(+356) 9998 6779
info@sensaramalta.com
Head Office - Sensara Malta
Triq Santa Marija, Safi
09.00 to 19.00 hrs
Monday to Saturday
Home
Properties
Sales
Rentals
Foreign
About us
Services
Contacts
Send your request
Previous
Next
330,000 €
CLICK HERE for DETAILED PHOTOS
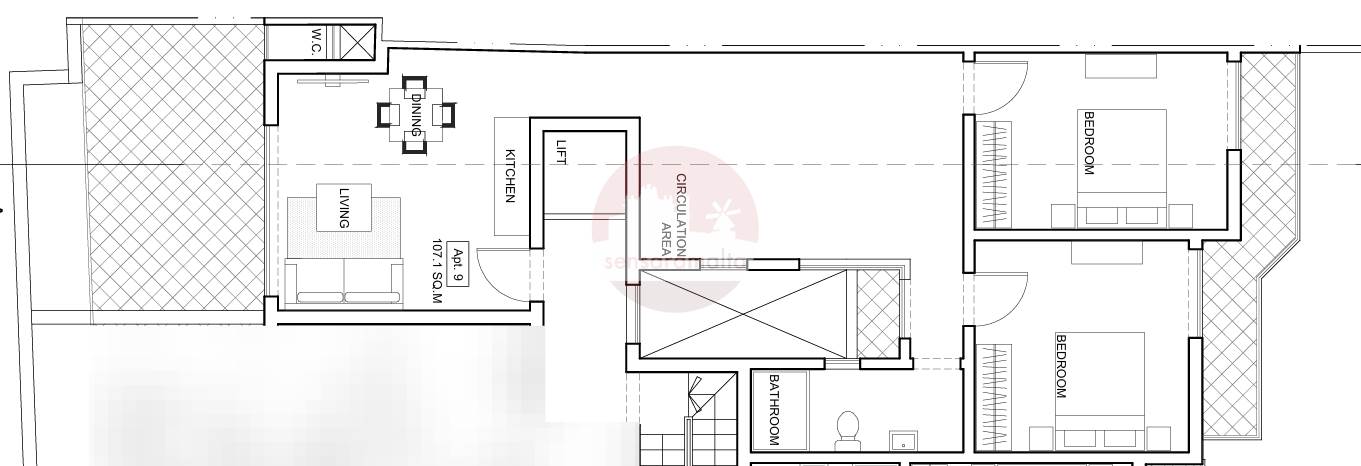
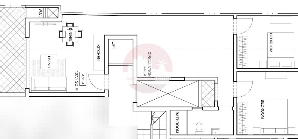
Xghajra - Under Construction 2 Bedroom Finished Penthouse + Airspace + Garage
Penthouse for sale • Xghajra
*** The advertised price is a special discounted rate exclusively for SM Client **
Situated in a peaceful residential area just moments from the seafront and close to Smart City, this beautifully designed two-bedroom penthouse in Xgħajra presents an exceptional opportunity for first-time buyers, downsizers, or investors seeking a stylish home in a tranquil yet well-connected location.
Currently available on plan, with construction already underway and completion scheduled for the end of 2026, this property offers modern living with thoughtful design throughout.
The layout comprises two double bedrooms and a bright open-plan kitchen, living, and dining area leading onto a spacious front terrace — perfect for outdoor entertaining while enjoying side sea views. The property also includes a second back terrace and a convenient guest toilet accessible directly from the front terrace.
Adding further value, the penthouse enjoys full ownership of roof and airspace.
The property is being sold finished, excluding bathrooms and internal doors, allowing buyers the freedom to personalise the final finishes to their taste.
Optional interconnected garages are available.
Freehold.
Rooms and Features
Code
V021972
Locality
Xghajra
Property type
Penthouse
Price
330,000 €
Locals
1
Bedrooms
2
Bathrooms
1
Sqm
107.1
Terraces
2
Floor
4
Energetic class
Nondescript
Property Conditions
Under Construction
Photos • Floorplans • Video
Photos
Options
Print Property sheet
Send property sheet by mail
Schedule a visit
RealEstate Brokers
Schembri Maria Pawla
+356 7732 8183
+356 9998 6779
+356 9998 6775
pawla@sensaramalta.com
Information request
Name *
Phone *
E-mail *
Request Details *
I authorize the processing of my personal data according Regolamento UE n. 679/2016 -
Privacy Policy
I authorize the processing of data for marketing purposes, promotional activities, commercial offers and market surveys.
Send
Share on
We also recommend
for Sale
Victoria Gozo - 3 Bedroom Duplex Apartment On Plan
215,000 €
for Sale
Msida - One Bedroom Finished Penthouse
251,000 €
for Sale
Zabbar - 2 Bedroom Furnished Penthouse
385,000 €
Keep default settings X
Use of cookies
This site uses cookies. Our (own) cookies and those of our Partners (third party cookies) are used to offer you a unique experience with us. For this reason, together with our partners, we collect and process non-sensitive information (such as the identifier of your device or the pages you visit).
At any time you can delete, modify or verify the information you share in
Cookie preference
or in our
Cookie Policy
and
Privacy Policy
.
Necessary
Functional
Profiling
Analytics
Accept all
Decline all
Accept selected
Cookie preference