Toggle navigation
(+356) 2164 9500
(+356) 9998 6779
info@sensaramalta.com
Head Office - Sensara Malta
Triq Santa Marija, Safi
09.00 to 19.00 hrs
Monday to Saturday
Home
Properties
Sales
Rentals
Foreign
About us
Services
Contacts
Send your request
Previous
Next
338,000 €
CLICK HERE for DETAILED PHOTOS
Luqa - 3rd Floor 3 Bedroom Apartment Finished - On Plan
3+ bedroom apartment for sale • Luqa
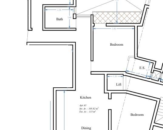
A spacious on plan apartment in Luqa two units per floor in a block of 8 units. Finished excluding bathrooms & doors.
It consists K/L/D overlooking back balcony, a corridor leads to main bathroom, box room, a bedroom and another two bedroom overlooking front balcony which main bedroom with ensuite.
Target completion date mid 2027
Optional garages available starting from 62k.
Freehold
Rooms and Features
Code
V021734
Locality
Luqa
Property type
3+ bedroom apartment
Price
338,000 €
Locals
1
Bedrooms
3
Bathrooms
2
Sqm
133
Garages
1
Energetic class
Not applicable
Property Conditions
Under Construction
Furniture
Not Furnished
Kitchen
Open Kitchen
Accessories:
Elevator, Double Glazing
Photos • Floorplans • Video
Photos
Options
Print Property sheet
Send property sheet by mail
Schedule a visit
RealEstate Brokers
Grima Keith
+356 7902 0587
+356 9998 6775
+356 9998 6779
keith@sensaramalta.com
Information request
Name *
Phone *
E-mail *
Request Details *
I authorize the processing of my personal data according Regolamento UE n. 679/2016 -
Privacy Policy
I authorize the processing of data for marketing purposes, promotional activities, commercial offers and market surveys.
Send
Share on
We also recommend
for Sale
Swieqi - 3 Bedroom Apartment On Plan
680,000 €
for Sale
Birzebbuga - 3 Bedroom 1st Floor Finished Apartment On Plan
328,000 €
for Sale
Mqabba - Second Floor 3 Bedroom Finished Apartment On Plan
410,000 €
Keep default settings X
Use of cookies
This site uses cookies. Our (own) cookies and those of our Partners (third party cookies) are used to offer you a unique experience with us. For this reason, together with our partners, we collect and process non-sensitive information (such as the identifier of your device or the pages you visit).
At any time you can delete, modify or verify the information you share in
Cookie preference
or in our
Cookie Policy
and
Privacy Policy
.
Necessary
Functional
Profiling
Analytics
Accept all
Decline all
Accept selected
Cookie preference