Toggle navigation
(+356) 2164 9500
(+356) 9998 6779
info@sensaramalta.com
Head Office - Sensara Malta
Triq Santa Marija, Safi
09.00 to 19.00 hrs
Monday to Saturday
Home
Properties
Sales
Rentals
Foreign
About us
Services
Contacts
Send your request
Previous
Next
430,000 €
CLICK HERE for DETAILED PHOTOS
Burmarrad - 3 Bedroom Fully Finished Apartment
3+ bedroom apartment for sale • Burmarrad
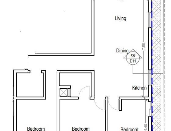
Introducing a three-bedroom apartment currently on plan, scheduled for compilation by December 2025. This property will be offered fully finished including bathrooms and doors. The design features an open plan kitchen/dining/living complemented by both front and back balconies, providing ample natural light and outdoor space, three bedrooms master with ensuite and a main bathroom. This apartment presents an excellent opportunity to own a modern, well-appointed home upon it's completion. Optional garages are available at an extra price.
Rooms and Features
Code
V021554
Locality
Burmarrad
Property type
3+ bedroom apartment
Price
430,000 €
Locals
1
Bedrooms
3
Bathrooms
2
Sqm
167
Terraces
2
Floor
3
Energetic class
Not applicable
Property Conditions
New
Photos • Floorplans • Video
Photos
Options
Print Property sheet
Send property sheet by mail
Schedule a visit
RealEstate Brokers
Kitney Claudia
+356 9940 4319
+356 9998 6779
+356 9998 6775
claudia@sensaramalta.com
Information request
Name *
Phone *
E-mail *
Request Details *
I authorize the processing of my personal data according Regolamento UE n. 679/2016 -
Privacy Policy
I authorize the processing of data for marketing purposes, promotional activities, commercial offers and market surveys.
Send
Share on
We also recommend
for Sale
Qawra - Furnished 3/4 Bdr Elv Grd Flr Apartment
368,500 €
for Sale
Sannat Gozo - Large Townhouse + Garden
950,000 €
for Sale
Pieta, Already Built Fully Finished circa 143sqm Ground Floor- 3 Bed Apartment + Yard
425,000 €
Keep default settings X
Use of cookies
This site uses cookies. Our (own) cookies and those of our Partners (third party cookies) are used to offer you a unique experience with us. For this reason, together with our partners, we collect and process non-sensitive information (such as the identifier of your device or the pages you visit).
At any time you can delete, modify or verify the information you share in
Cookie preference
or in our
Cookie Policy
and
Privacy Policy
.
Necessary
Functional
Profiling
Analytics
Accept all
Decline all
Accept selected
Cookie preference